Galleria
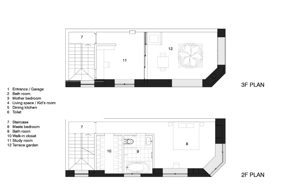
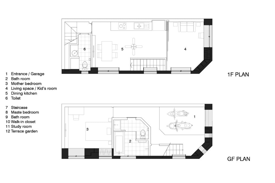
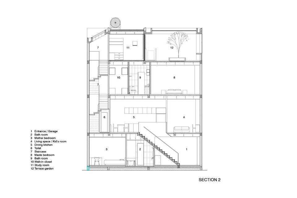
Casa nel vicolo, Dist1, Ho Chi Minh City, Vietnam
Tipologia: casa unifamiliare
Architetti: Sanuki Daisuke Architects, Sanuki Daisuke, Huynh Anh Tuan
Impresa principale: Công ty TNHH Cơ khí và xây dựng & thương mại Tám sáu
Ingegneria strutturale: Công ty TNHH Cơ khí và xây dựng & thương mại Tám sáu
Altezza: 13,6m quattro piani
Struttura: cemento armato
Completamento: 2016
