View gallery
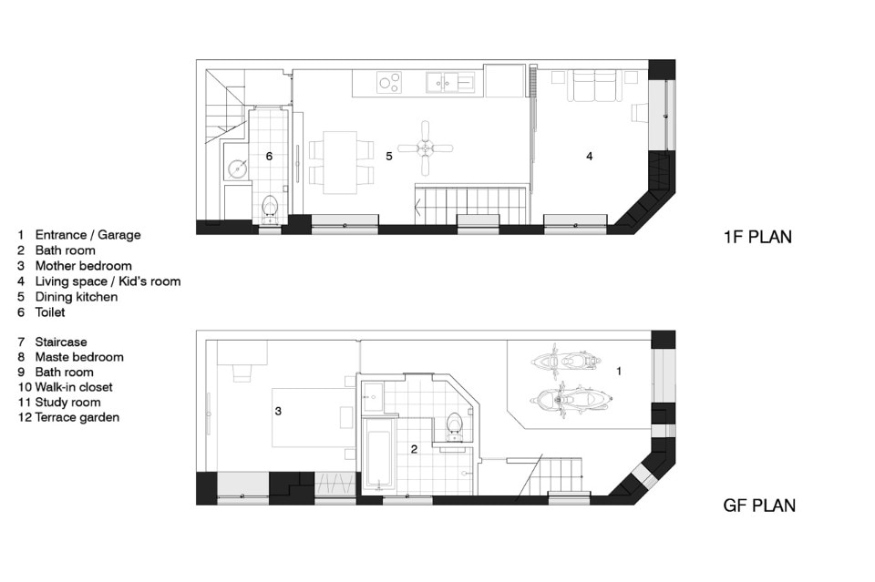
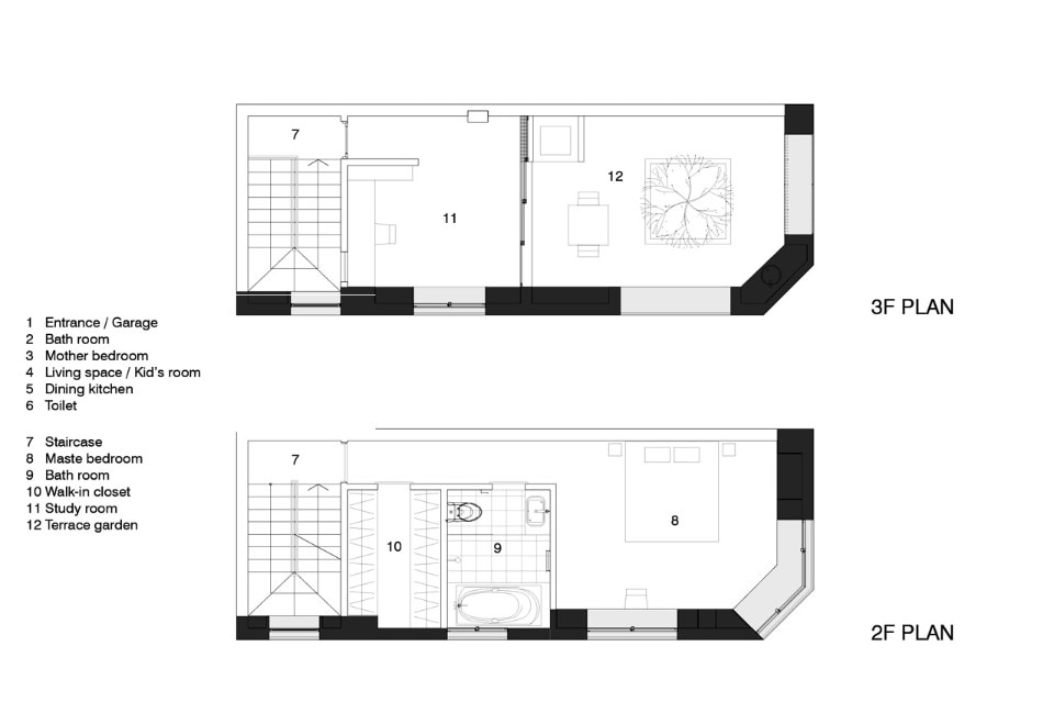
Hem House, Dist1, Ho Chi Minh City, Vietnam
Program: single family house
Architects: Sanuki Daisuke Architects, Sanuki Daisuke, Huynh Anh Tuan
Main contractor and structure: Công ty TNHH Cơ khí và xây dựng & thương mại Tám sáu
Building height: 13.6m, 4 stories
Structure: reinforced concrete frame structure
Completion: 2016
