Galleria
Module Grid House, Saitama, Japan
Tipologia: casa unifamiliare
Architettura: Tetsuo Yamaji Architects
Strutture: Ladderup Architects
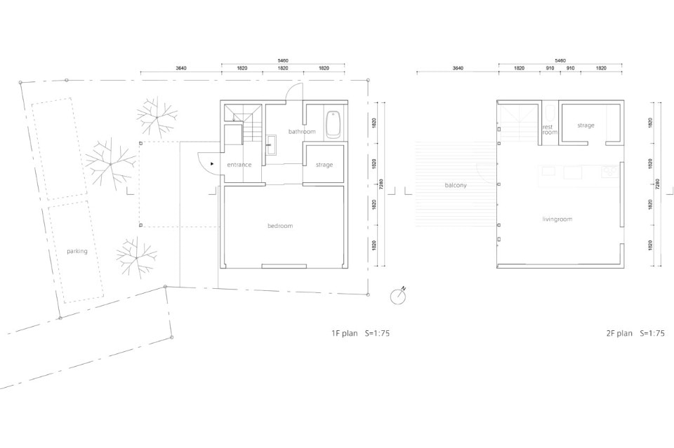
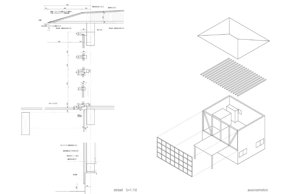
Dimensioni area: 208,27 mq
Superficie costruita: 39,75 mq
Superficie totale: 79,50 mq
Completamento: 2015
