Per nascondere la vista del contesto poco gradevole il perimetro è stato circondato con nuove piante. L’intenzione era quella di modificare la percezione senza creare un recinto. Mentre il piano terra è legato allo spazio esterno, il primo è legato alla vista sul paesaggio.
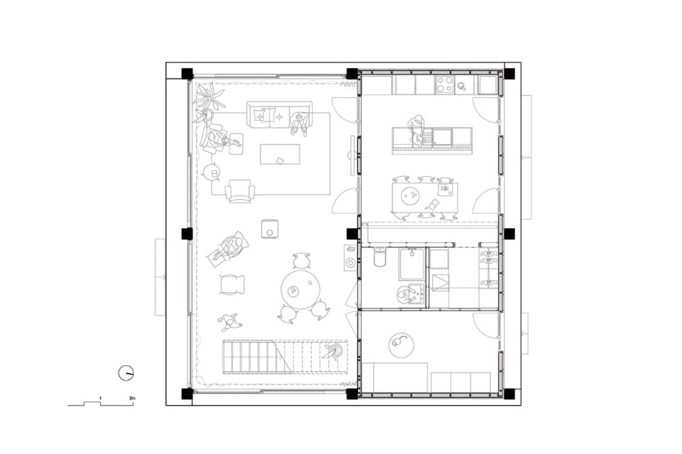
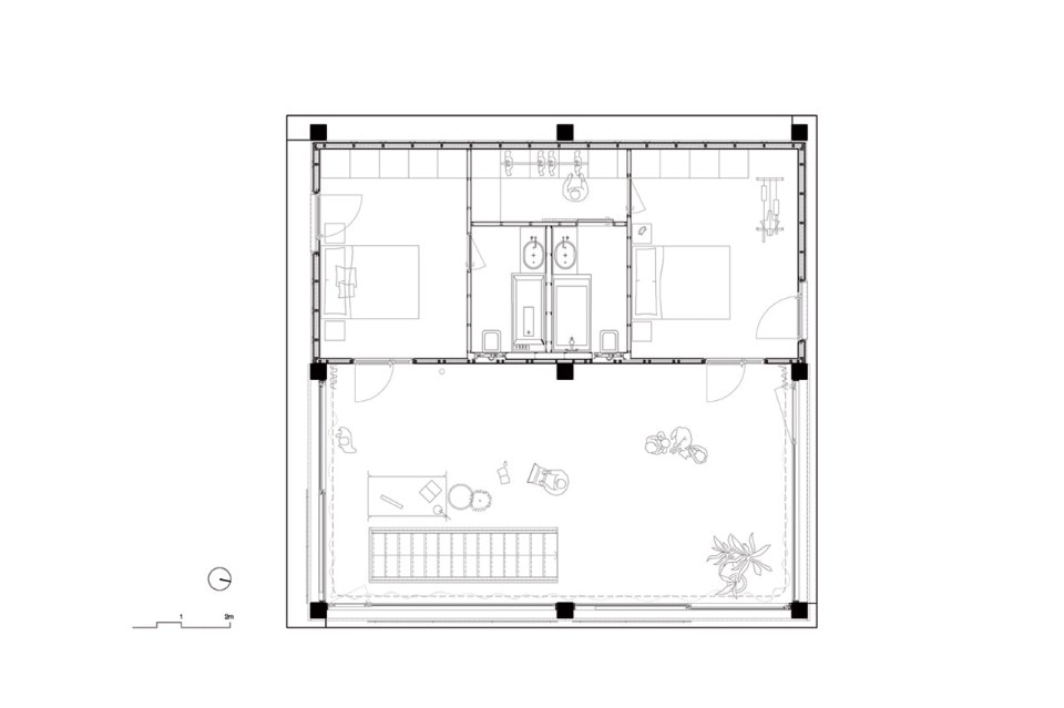
Metà della superficie di ogni piano è occupata da una “scatola” leggera, ciascuna posizionata in direzione opposta per stabilire un rapporto ottimale con lo spazio esterno. Quella al piano terra è collocata sul lato nord, al fine di sfruttare l’orientamento a sud della galleria e ospita la cucina e uno studio-deposito che funziona come un portico in estate e come spazio di guadagno solare in inverno. La scatola al primo piano ospita due piccole stanze: le loro dimensioni consentano di sfruttare lo spazio della galleria esterna, che sarà utilizzato come un balcone in estate e come studio in inverno.
Galleria
Casa 1217, Escala, Girona, Spagna
Tipologia: casa unifamiliare
Architetti: Harquitectes
Collaboratori: Albert Farell, Carla Piñol Moreno
Area: 226,75 mq
Completamento: 2015
