Galleria
Luigi Rosselli Architects, The Bow Window Penthouse, Bondi Beach, Sydney, Australia. Pianta del piano terra
Luigi Rosselli Architects, The Bow Window Penthouse, Bondi Beach, Sydney, Australia. Pianta del secondo piano
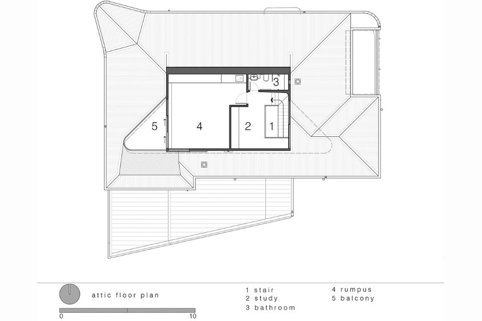
Luigi Rosselli Architects, The Bow Window Penthouse, Bondi Beach, Sydney, Australia. Attico
Luigi Rosselli Architects, The Bow Window Penthouse, Bondi Beach, Sydney, Australia. Sketch
The Bow Window Penthouse, Bondi Beach, Sydney, Australia
Tipologia: attico
Architetti: Luigi Rosselli Architects
Progetto: Luigi Rosselli
Progetto esecutivo: Carl Rutherfoord, Blake Letnic
Impresa: Groundup Building Pty Ltd
Completamento: 2016
