View gallery
Luigi Rosselli Architects, The Bow Window Penthouse, Bondi Beach, Sydney, Australia. Ground floor plan
Luigi Rosselli Architects, The Bow Window Penthouse, Bondi Beach, Sydney, Australia. Second floor plan
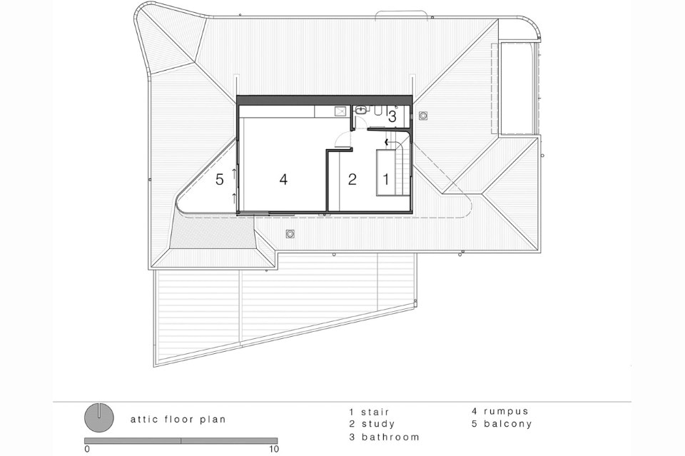
Luigi Rosselli Architects, The Bow Window Penthouse, Bondi Beach, Sydney, Australia. Attic plan
Luigi Rosselli Architects, The Bow Window Penthouse, Bondi Beach, Sydney, Australia. Sketch
The Bow Window Penthouse, Bondi Beach, Sydney, Australia
Program: penthouse
Architects: Luigi Rosselli Architects
Design Architect: Luigi Rosselli
Project Architect: Carl Rutherfoord, Blake Letnic
Contractor: Groundup Building Pty Ltd
Completion: 2016
