Il volume è posto in un angolo per evitare di dover tagliare tutti gli alberi e lasciare il massimo spazio libero a un prato per pranzi e feste di famiglia.
La casa ha un programma convenzionale, in cui le parti comuni godono della vista migliore e di più spazio possibile. La costruzione è molto semplice ed economica: gli elementi in calcestruzzo orizzontali sono stati lasciati esposti a stabilire un modello di riferimento nelle facciate e si estendono in aggetti che proteggono la facciata più esposta su un lato e coprono lo spazio per parcheggiare l’auto sull’altro. Le pareti di mattoni non portanti sono state dipinte di bianco, in modo simile all’architettura vernacolare di stalle e scuderie nella zona.
Galleria
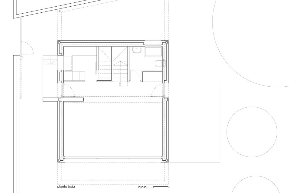
Moisés Puente, Javier Ramos Morán, House in an Orchard, Villarroañe (León), Spagna. Pianta del piano terra
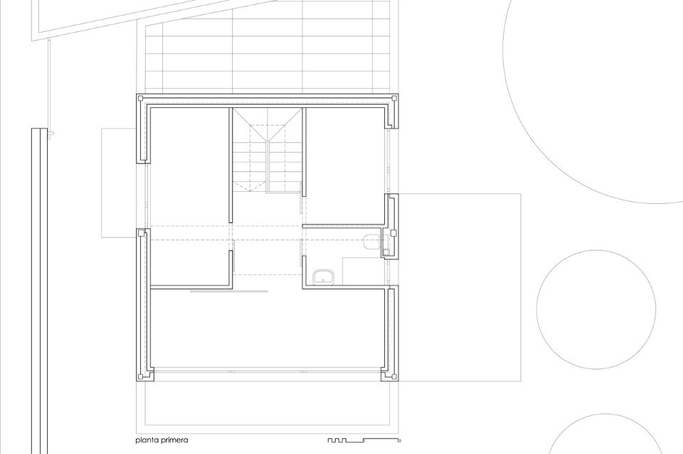
Moisés Puente, Javier Ramos Morán, House in an Orchard, Villarroañe (León), Spagna. Pianta del primo piano
Moisés Puente, Javier Ramos Morán, House in an Orchard, Villarroañe (León), Spagna. Prospetti
Moisés Puente, Javier Ramos Morán, House in an Orchard, Villarroañe (León), Spagna. Prospetti
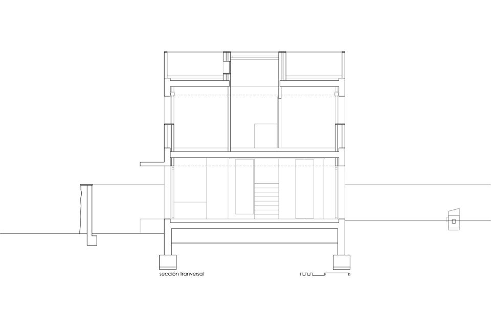
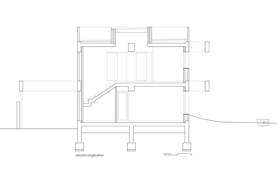
Moisés Puente, Javier Ramos Morán, House in an Orchard, Villarroañe (León), Spagna. Sezione
House in an Orchard, Villarroañe (León), Spagna
Tipologia: casa unifamiliare
Architetti: Moisés Puente, Javier Ramos Morán
Completamento: 2015
