Pacemar SAS, holding di Louis Dreyfus Armateurs, ha acquistato uno di questi complessi moderni, costruito nel 1989.
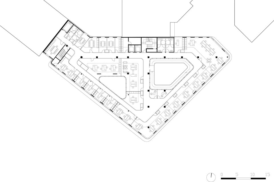
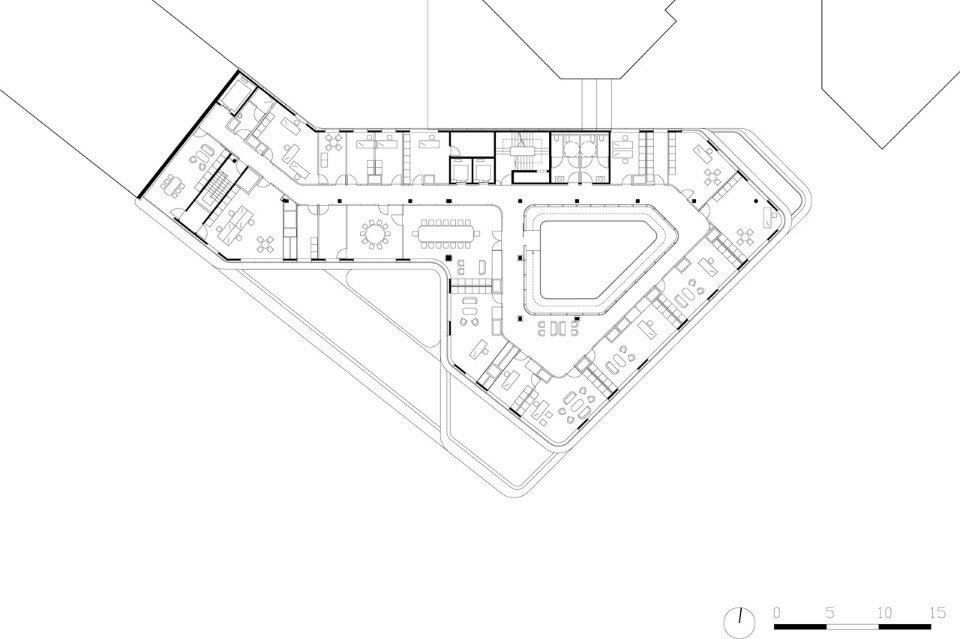
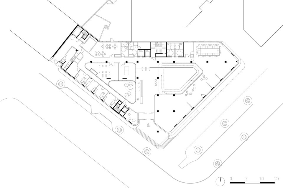
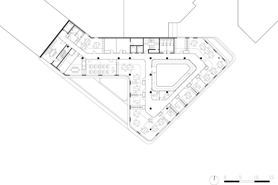
L’edificio originario, di circa 4.300 mq, costruito in cemento armato con una struttura a colonne e travi, è stato progettato su sei livelli: un parcheggio sotterraneo da 88 posti, un piano terra, e quattro livelli superiori.
L’intervento architettonico si è basato su tre principi. In primo luogo, una riorganizzazione dei piani in spazi efficienti e fluidi, inondati di luce naturale, intorno a un vasto atrio e un cortile interno ricavato dalla forma originale dell’edificio. In secondo luogo, la creazione di spazi di circolazione generosi, visibili e con una buona illuminazione naturale, che promuovono l’accessibilità e lo scambio. In terzo luogo, la progettazione di una nuova facciata, che assicura un isolamento termico e acustico efficiente mantenendo la trasparenza e la vista su questo contesto eccezionale.
L’atrio e il cortile forniscono le due aperture necessarie che conducono al cuore degli spazi, in cui la luce naturale era carente. L’atrio ospita una rampa monumentale, un elemento unificante centrale che invita all’esplorazione e crea un contatto visivo tra i diversi livelli. L’altezza dell’atrio rende il layout facilmente comprensibile e porta il cielo direttamente nel cuore dell’edificio. Il cortile è nato dalla necessità di portare la luce del giorno nella sala d’ingresso e come un segno di gentilezza verso gli abitanti, rinunciando ai due livelli superiori.
Galleria
\\SRV-SBS\Commun_Srv\TEMP\DESSINS BOOK\DESSINS BOOK - REALISATIONS 1 - 151201 PACEMAR (1)
/Volumes/commun/02-Projet/096-PACEMAR/00-3D/00-coupes et axos/130422 coupe1.dwg
Z:\03-Communication\02-Graphics\01-Mises en page\2013\05-BOOK\DESSINS\AUTOCAD\DESSINS BOOK - REALISATIONS 1 REALISTATION (1)
J:\TEMP\DESSINS BOOK - REALISATIONS 1 - 151201 PACEMAR (1)
J:\TEMP\DESSINS BOOK - REALISATIONS 1 - 151201 PACEMAR (1)
J:\TEMP\DESSINS BOOK - REALISATIONS 1 - 151201 PACEMAR (1)
J:\TEMP\DESSINS BOOK - REALISATIONS 1 - 151201 PACEMAR (1)
Pacemar Headquarters, Suresnes, Francia
Tipologia: edifcio per uffici
Architetti: AZC - Grégoire Zündel, Irina Cristea, Jeremias Lorch e Laurie Tiradas
Partners: Batiserf, Louis Choulet, Bureau Michel Forgue, VS.A, Artelia
Area: 5.074 mq
Completamento: 2015
