Pacemar SAS, holding company of Louis Dreyfus Armateurs, purchased one of these modern blocks, built in 1989.
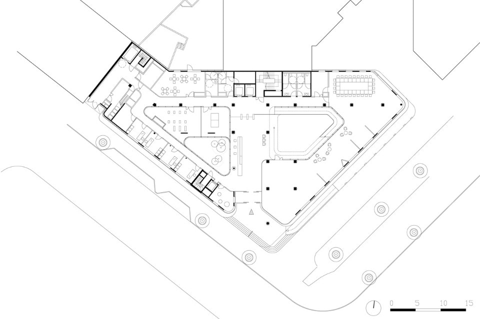
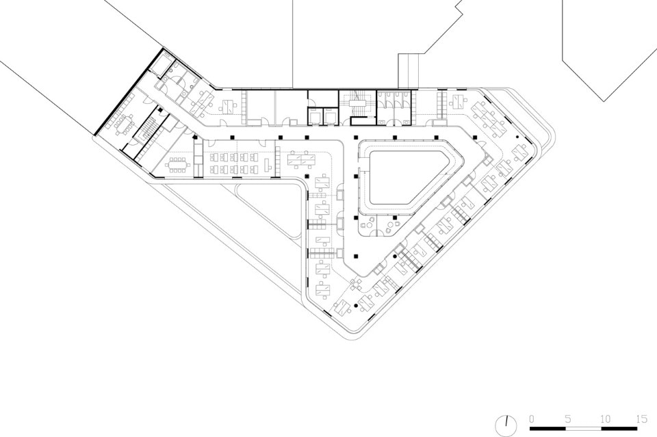
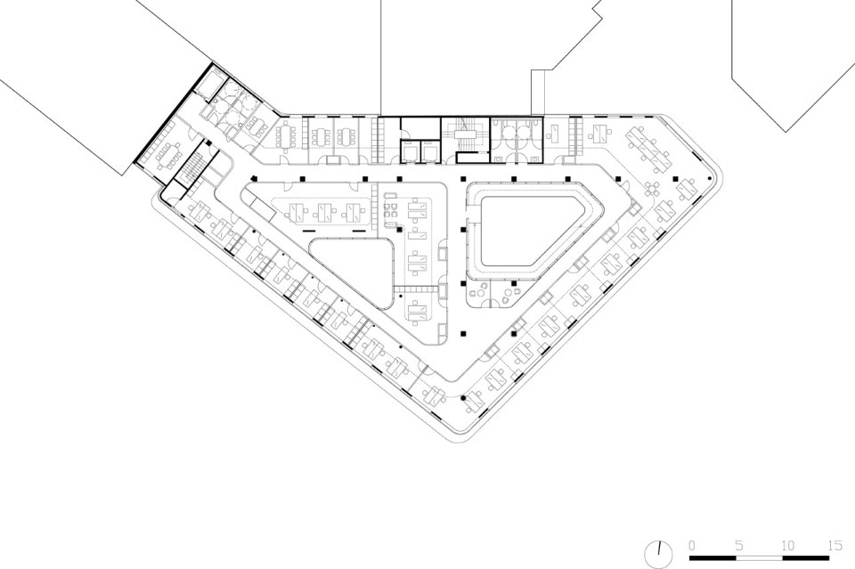
The original building, some 4,300 sqm built in reinforced concrete with a column-and-beam structure, was designed over six levels: an 88-place underground car park, a ground floor, and four upper levels.
The architectural intervention was based on three principles. Firstly, a reorganisation of the floorplates into fluid efficient spaces bathed in natural light, around a vast atrium and an internal courtyard cut out of the overweight interior created by the original form of the building. Secondly, the provision of generous circulation spaces, visible and with good natural lighting, which promote accessibility and exchange within the building. Thirdly, the design of a new facade, which ensures an efficient thermal and acoustic envelope while maintaining transparency and impressive views over the exceptional surroundings.
The atrium and the courtyard provide two necessary openings at the heart of the spaces, where natural light was lacking. The atrium houses a monumental ramp, a unifying element at the heart of the building that invites exploration and visual contact between the different levels. The height of the atrium renders the layout readily comprehensible and brings the sky right into the heart of the building. The courtyard was born of the need to bring daylight into the heart of the entrance hall and as a mark of kindness to the residents of the “village anglais” by stepping back on the two upper levels.
View gallery
\\SRV-SBS\Commun_Srv\TEMP\DESSINS BOOK\DESSINS BOOK - REALISATIONS 1 - 151201 PACEMAR (1)
/Volumes/commun/02-Projet/096-PACEMAR/00-3D/00-coupes et axos/130422 coupe1.dwg
Z:\03-Communication\02-Graphics\01-Mises en page\2013\05-BOOK\DESSINS\AUTOCAD\DESSINS BOOK - REALISATIONS 1 REALISTATION (1)
J:\TEMP\DESSINS BOOK - REALISATIONS 1 - 151201 PACEMAR (1)
J:\TEMP\DESSINS BOOK - REALISATIONS 1 - 151201 PACEMAR (1)
J:\TEMP\DESSINS BOOK - REALISATIONS 1 - 151201 PACEMAR (1)
J:\TEMP\DESSINS BOOK - REALISATIONS 1 - 151201 PACEMAR (1)
Pacemar Headquarters, Suresnes, France
Program: office building
Architects: AZC - Grégoire Zündel, Irina Cristea, Jeremias Lorch and Laurie Tiradas
Partners: Batiserf, Louis Choulet, Bureau Michel Forgue, VS.A, Artelia
Area: 5,074 sqm
Completion: 2015
