Il piano terra è completamente a disposizione del pubblico in modo che i cittadini possano passare attraverso la costruzione, sia che vogliano andare a un concerto, a un congresso, al bar o semplicemente prendere una scorciatoia.
L’ingresso principale si trova nella parte settentrionale del complesso, che guarda la piazza antistante con un motivo di loggiato classico. Da sud, i visitatori entrano direttamente dalla passeggiata che costeggia il canale.
Le diverse funzioni sono organizzate come elementi separati di una piccola città. La lobby diventa la strada, che attraversa il piano terra e lega tutto insieme. Come nelle città medievali, con tortuose stradine organizzate attorno a piazze e piazzette, la lobby è stata progettata per formare piccoli luoghi di aggregazione e rientranze dove i visitatori possono fermarsi, sedersi e godersi la vista sul canale e sul parco.
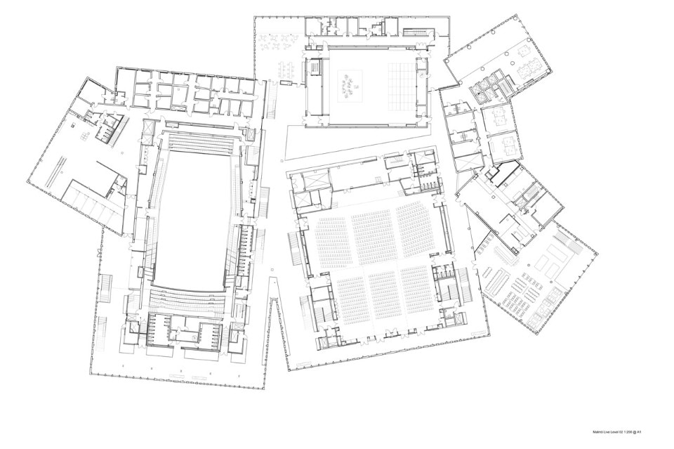
All’interno, tre volumi ospitano una grande sala sinfonica, una sala flessibile e una sala conferenze: tre elementi che, attraverso la loro composizione reciproca, impostano il tono per l’armonia della costruzione. Le tre masse appaiono come una composizione tridimensionale di piastrelle smaltate.
Malmö Live è una costruzione dinamica, aperta, espressiva, che offre numerose attività. Il punto di partenza per la progettazione è stata la moderna tradizione architettonica scandinava, che si concentra su un’organizzazione chiara e funzionale e un piano terra aperto e accessibile. L’edificio diventerà un punto di riferimento di Malmö, offrendo un ambiente in cui lo spirito della città, la sua diversità e la sua intimità trovano un’espressione architettonica.
Galleria
Layout1
Layout1
Layout1
Malmö Live, Malmö, Svezia
Tipologia: centro congressi, auditorium, hotel
Architetti: schmidt hammer lassen architects
Architetto paesaggista: SLA
Impresa: Skanska Sverige ABhotel e centro congressi)
Area: 54.000 mq
Completamento: 2015
