Una facciata rivestita in piastrelle quadrate nere e riflettenti è la risposta al contesto, capace di catturare i riflessi del quartiere e le luci circostanti, donando un aspetto peculiare al volume. La facciata si fonde con l’ambiente circostante e offre una reinterpretazione dell’architettura locale con le sue facciate di piastrelle moderniste.
Il materiale ceramico è stato scelto per il suo riferimento storico, per la bassa necessità di manutenzione ma anche per le sue proprietà estetiche, cromatiche e di riflessione della luce.
Galleria
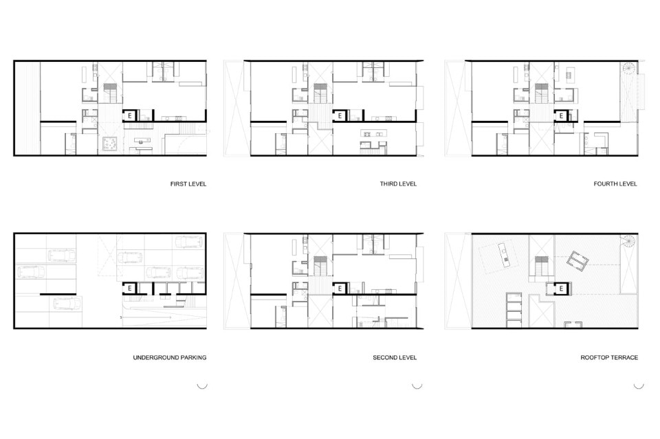
Yácatas 475, quartiere Narvarte, Città del Messico
Tipologia: edificio per appartamenti
Architetti: EDAA
Team di progetto: Luis Arturo García, Juan Hernández, Jahir Villanueva, Hans Álvarez, Antonio Rivas, Ana Fernanda Rodríguez, Enrique Villalón
Team di costruzione: Lilia Bazán, Hans Álvarez, Yolibel Allende, Carlos del Castillo, Daniel Languré
Area: 1.730 mq
Completamento: 2015
