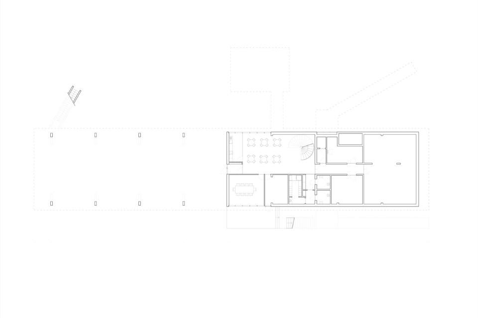
Caratterizzato da una pianta rettangolare, l’edificio si ispira volutamente alle forme di un millepiedi. Tale disegno, permette di far funzionare separatamente le due aree principali.
Da una parte si sviluppa l’EDP Leiria con le sue funzioni amministrative. L’entrata principale si situa a est, su un piano rialzato rispetto al terreno, aprendosi direttamente su un corridoio e una grande hall. Il corridoio porta agli uffici distribuiti su un grande open space, permettendo ai lavoratori di usufruire della relazione continua tra l’ambiente di lavoro e il paesaggio circostante lungo i due lati maggiori dell’edificio (est e ovest).
Attraverso una porta situata a sud-ovest, una scala conduce direttamente all’esterno in un area a contatto con il bosco, liberamente utilizzabile per un pic-nic all’aperto, una camminata o, piú semplicemente, per una telefonata privata.
Dalla hall é possibile vedere un tunnel e una scala a spirale. Il primo consiste in una forma neutra che conduce a una luminosa sala riunioni, dotata di ampie superfici vetrate.
Uno spazio che si configura come un corpo indipendente, camuffato tra gli alberi e capace di trasmettere un’atmosfera serena e privata. La scala a spirale porta al piano terra, negli spazi riservati allo staff. Su questo livello si localizzano in posizione defilata i guardaroba e i servizi igienici del personale, lasciando un ampio spazio alla sala pranzo con angolo cottura. Sullo stesso piano si trovano inoltre una sala riunioni e ulteriori spazi di lavoro e archivio. Il piano terra comunica con l’esterno attraverso un accesso riservato che apre direttamente sulla zona parcheggi, localizzata ai piedi dell’edificio.
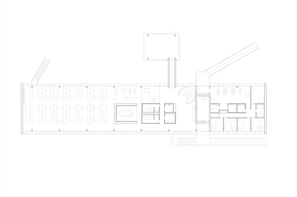
Dall’altra parte, l’edificio accoglie gli spazi di EDP Sãvida Clinic. Tale sezione nasce dalla volontà del cliente di localizzare, vicino agli spazi amministrativi, una struttura sanitaria riservata ai dipendenti e alle rispettive famiglie. Tale struttura opera in modo indipendente dall’altra, con accesso differenziato attraverso un ponte situato sul lato a nord-ovest della costruzione.
Approfittando della luce naturale, la composizione degli spazi interni privilegia le viste verso il paesaggio circostante, disegnando un circuito esterno che connette in successione reception, sala di attesa e i differenti ambulatori medici, lasciando la zona centrale a servizi e spazi tecnici.
Galleria
alçado nascente
alçado nascente
Nuova Sede EDP, Leiria, Portogallo
Tipologia: uffici
Architetti: RCA – Regino Cruz Arquitectos
Team di progetto: Regino Cruz, Célide Cruz, Filipe Balestra, Sara Göransson, Rafael Balestra, Hugo Ricardo, Ruben Mateus e Luís Pestana
Ingegneria strutturale: Profico Projectos
Impresa: Conduril Engenharia
Committente: EDP – Distribuição
Area: 1.250 mq
Completamento: 2015
