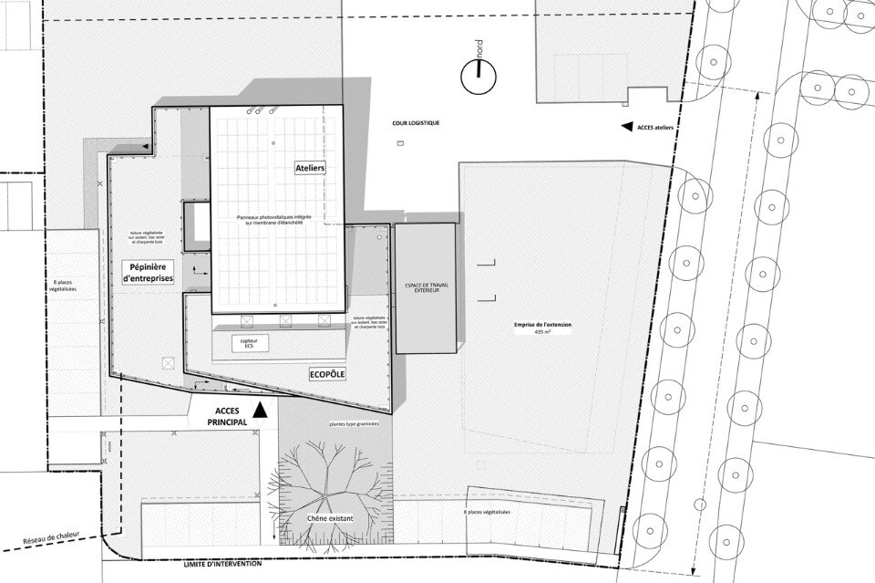
L’ambiente circostante, i vincoli del sito e le indicazioni del programma (ad esempio i pannelli fotovoltaici) formano il volume nella sua forma definitiva. Eno Architectes cerca di evitare due trappole: l’approccio tecnologico e l’approccio attivista.
Il progetto utilizza la ventilazione assistita con aria che entra naturalmente preriscaldata da una serra bioclimatica e un muro con sensori di calore. L’uso di sistemi automatici o motorizzati è limitato perche visti come consumatori di energia che promuovono una riduzione della coscienza ambientale collettiva proponendosi come quasi indispensabili, mentre sono talvolta sostituibili da una singola azione umana.
Per esempio, la serra è naturalmente ventilata in estate grazie a un’azione umana necessaria all’inizio della stagione calda e chiusa in autunno nello stesso modo. La protezione contro il sole è passiva (la gronda del tetto e un albero esistente proteggono la serra in estate). La struttura e il rivestimento sono in legno non trattato. L’isolamento delle pareti è realizzato in canapa e legno, mentre il tetto verde accoglie i pannelli solari fotovoltaici.
Si tratta di una costruzione responsabile per utenti responsabili. Il progetto informa i visitatori attraverso un sistema di segnaletica educativa, diventando mezzo di comunicazione che guida le persone alla sua comprensione e le stimola a interagire con esso.
Galleria
141229-CONCARNEAU-PEPINIERE-DET
Ecopole, Zone Colguen, Concarneau, Francia
Tipologia: Ecopole e incubatore per imprese
Architetti: Eno Architectes (Claire Crest e Xavier Stocq)
Committente: Concarneau Cornwall Agglomeration
Area: 770 mq
Completamento: 2015
