La nostra proposta di intervento presentava l’opportunità di ripristinare il paesaggio tipico di questa zona rimuovendo tutti gli elementi conflittuali che vi erano stati costruiti, togliendo inoltre le conifere e le piante ornamentali innestate intorno e all’interno del bosco originario. Il reinserimento delle siepi autoctone ha consentito di ripristinare un mosaico di piccole aree verdi. Sono state piantumate anche nuove macchie di bosco naturale, che saranno oggetto di manutenzione ordinaria.
L’abitazione a un piano, che ha l’aspetto di un grande terrapieno, simile a una diga collocata in cima a un pendio, sorge sul campo rivolto a sud-ovest, verso la vallata. I principali spazi della zona giorno si aprono sulla loggia anteriore, mentre le stanze secondarie, all’interno dell’abitazione, danno su cortili più piccoli. Questi si differenziano per carattere e offrono la possibilità di stabilire un contatto ravvicinato con la natura, in antitesi alle viste aperte sui lontani spazi della vallata che caratterizzano la zona giorno. L’edificio, accessibile tramite una rampa sulla parte nord-est del sito, è essenzialmente immerso nel paesaggio. Il più grande dei quattro cortili (che affondano nel terreno) diventa uno spazio di servizio simile all’aia delle fattorie dell’Hambleden Valley. Il cortile d’ingresso consente di accedere alle varie parti della casa ed è collegato al terreno sottostante tramite la loggia. Questa apertura separa anche le stanze degli ospiti dal corpo principale della residenza.
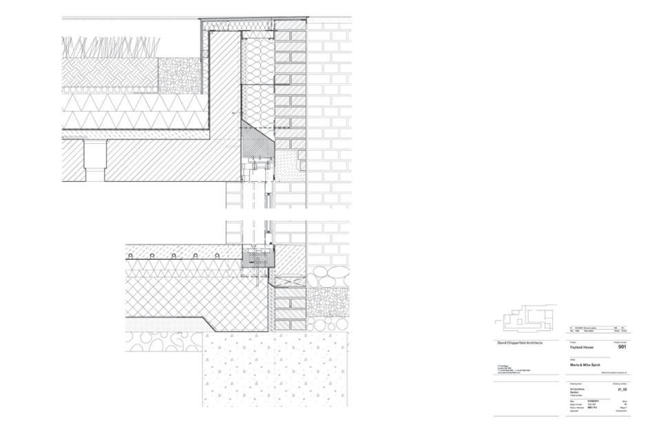
Il tetto in cemento è coperto con terriccio ricavato dal sito e seminato con erba locale, mentre le pareti sono in mattoni, lasciati a vista sia all’esterno sia all’interno. Il bianco dei mattoni e la malta a calce rimandano al gesso del terreno su cui sorge l’abitazione. Da una parte la struttura somiglia a una scarpata naturale nel paesaggio, dall’altra si impone quale manufatto creato dall’uomo grazie anche alle robuste colonne in mattoni collocate sul fronte principale.
Galleria
901 Site plan
901_06_D_PG
901_section AA
901_section GG
DETTAGLIO1
Casa Fayland, Buckinghamshire, Gran Bretagna
Progetto: David Chipperfield Architects
Progetto paesaggistico: Christopher Bradley-Hole
Strutture: Alan Baxter Associates
Impresa edile: Spink Construction Ltd.
Assistenza tecnica: Spink Property LLP
Estimo: Spink Property LLP
Committente: Mike e Maria Spink
Superficie complessiva: 888 mq
Fase progettuale: 2009
Costruzione: 2013
