This family house is located on a large plot in the Chiltern Hills between the villages of Skirmett and Hambleden.
The proposed development presented an opportunity to restore a typical landscape by removing all conflicting features that had been superimposed onto it. In addition, the conifers and suburban planting were removed from within and around the original woodlands. The mosaic of small fields is reinstated by restoring the native hedgerows, while areas of new native woodland planting have been identified and woodland management introduced. Presenting itself as a large earthwork, like a dam sitting on the cusp of the slope, the singlestorey house is embedded in the field facing southwest towards the valley.
A generous loggia stretching across the whole width of the building mediates between the private interior space and the expansive landscape. The main living spaces open onto the loggia, while the ancillary rooms, further into the house, open onto smaller courtyards. All the courtyards differ in character and provide close contact with nature as opposed to the long-distance views into the valley from the main living quarters.
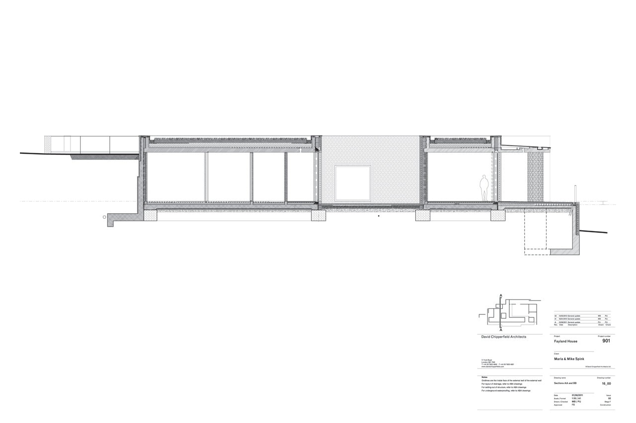
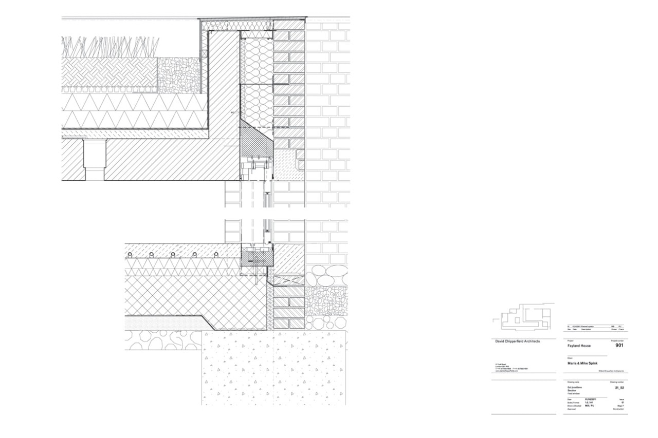
The building, accessible via a ramp at the northeast of the site, is essentially buried in the landscape. The largest of the four sunken courtyards becomes a working area reminiscent of the farmyards in the Hambleden Valley. The entrance courtyard provides access to the various areas of the house and connects to the land below via the loggia. This opening also separates the guest quarters from the main body of the house. The concrete roof is covered with topsoil from the site and planted with native grass, while the walls are made of brick, left visible both inside and out. The white colour of the bricks and the lime mortar is reminiscent of the chalk beneath the house. On the one hand the house appears as a natural escarpment in the landscape, while on the other it affirms itself as a man-made structure expressed by the robust brick columns placed in front.
View gallery
901 Site plan
901_06_D_PG
901_section AA
901_section GG
DETTAGLIO1
Fayland House, Buckinghamshire, Great Britain
Design architects: David Chipperfield Architects
Landscape architecture: Christopher Bradley-Hole
Structural engineering: Alan Baxter Associates
Building contractor: Spink Construction Ltd.
Services engineering: Spink Property LLP
Quantity surveyor: Spink Property LLP
Client: Mike e Maria Spink
Gross floor area: 888 sqm
Design phase: 2009
Construction phase: 2013
