Agli elementi prefabbricati in cemento che compongono la parte strutturale dell’edificio quali travi, pilastri, solai e mensole si sovrappongono livelli specifici studiati per rispondere alle diverse necessità prestazionali dell’involucro, quali esposizione, isolamento e intercettazione energetica, realizzati da elementi trasparenti, opachi, da brise-soleil filtranti e fotovoltaici, e ali dinamiche che consentono un migliore controllo dell’irraggiamento.
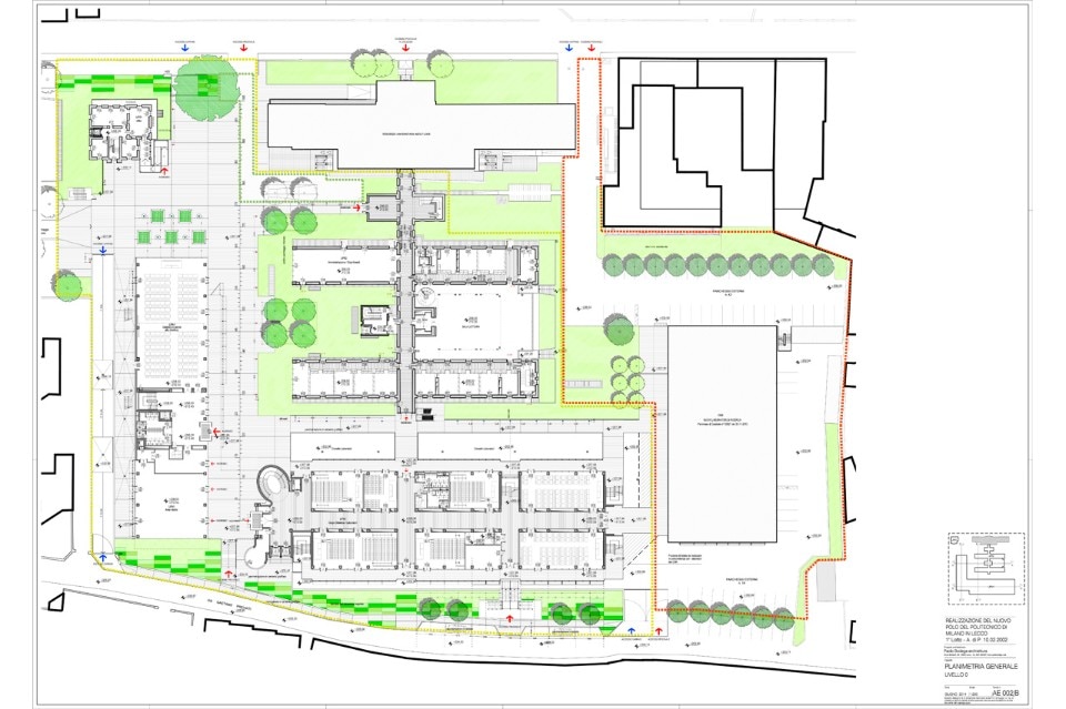
Il progetto del nuovo Polo Universitario, redatto sulla base degli elaborati preliminari predisposti dal Politecnico di Milano e dimensionato per una popolazione di 2.000 studenti, è nella sostanza composto dalla realizzazione di un nuovo edificio (contenente aule e laboratori) e il recupero degli edifici esistenti (dove hanno sede la palazzina Pro-rettorato, gli uffici e i dipartimenti). A completamento della struttura è stato aggiunto un nuovo spazio edilizio collocato all’interno di una corte adibito a sala lettura ed aule. È in fase di ultimazione la ristrutturazione del vecchio padiglione ospedaliero, che sarà adibito a residenza studentesca.
Galleria
POLITECNICO MILANO Sede di Lecco
POLITECNICO MILANO Sede di Lecco
POLITECNICO MILANO Sede di Lecco
POLITECNICO MILANO Sede di Lecco
POLITECNICO MILANO Sede di Lecco
POLITECNICO MILANO Sede di Lecco
POLITECNICO MILANO Sede di Lecco
Campus Universitario di Lecco
Architetto: Paolo Bodega Architettura
Progetto strutturale: Gamma Engineering
Progetto degli impianti: Technion
Progetto acustico: Biobyte
Impresa: Colombo Costruzioni
Impianti meccanici: Gianni Benvenuto
Impianti elettrici: Elettromeccanica Galli Italo
Committente: Politecnico di Milano
Area: 14.170,00 mq
Completamento: 2015
