Poiché l’edificio si raggiunge dal piano di copertura, a causa della pendenza del terreno, Sami arquitectos ha progettato il tetto in modo che possa essere utilizzato come terrazza dove sedersi e contemplare il paesaggio.
La casa, modellata all’interno delle mura di pietra, è stata progettata con aperture generose, per far entrare la luce e il paesaggio circostante. Queste aperture sono talvolta disallineate rispetto a quelle del rudere, disegnando nuove strutture e relazioni con i confini originali della casa.
Il progetto è un gioco tra una linea di confine, in pietra, e i nuovi volumi, che sono guidati dalla stessa linea ma talvolta si estendono indipendentemente da essa, per rispondere alle esigenze di spazio o di vista.
Galleria
Sami Arquitectos, Casa E/C, São Miguel Arcanjo, Pico, Isole Azzorre, Portogallo. Pinata del piano terra
Sami Arquitectos, Casa E/C, São Miguel Arcanjo, Pico, Isole Azzorre, Portogallo. Pianta del primo piano
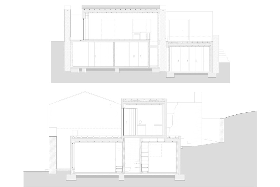
Sami Arquitectos, Casa E/C, São Miguel Arcanjo, Pico, Isole Azzorre, Portogallo. Sezioni
Sami Arquitectos, Casa E/C, São Miguel Arcanjo, Pico, Isole Azzorre, Portogallo. Prospetti
Casa E/C, São Miguel Arcanjo, Pico, Isole Azzorre, Portogallo
Tipologia: casa vacanze
Architetti: Sami arquitectos (Inês Vieira da Silva, Miguel Vieira)
Team di progetto: Bruna Silva, João do Vale Martins, Andreia Luís, Inês Martins, Rita Maria Pinto, Daniel Mentech
Ingegneria strutturale: Ricardo Ferro Antunes e Francisco Mendonça Santos
Impianti sanitari: Paulo Jorge Almeida Oliveira
Ingegneria elettrica: Hugo Mendonça
Impresa: José Artur Cruz Leal - Unipessoal, Lda
Arredi: Sami con Loja Nord
Area: 214 mq
Completamento: 2013
