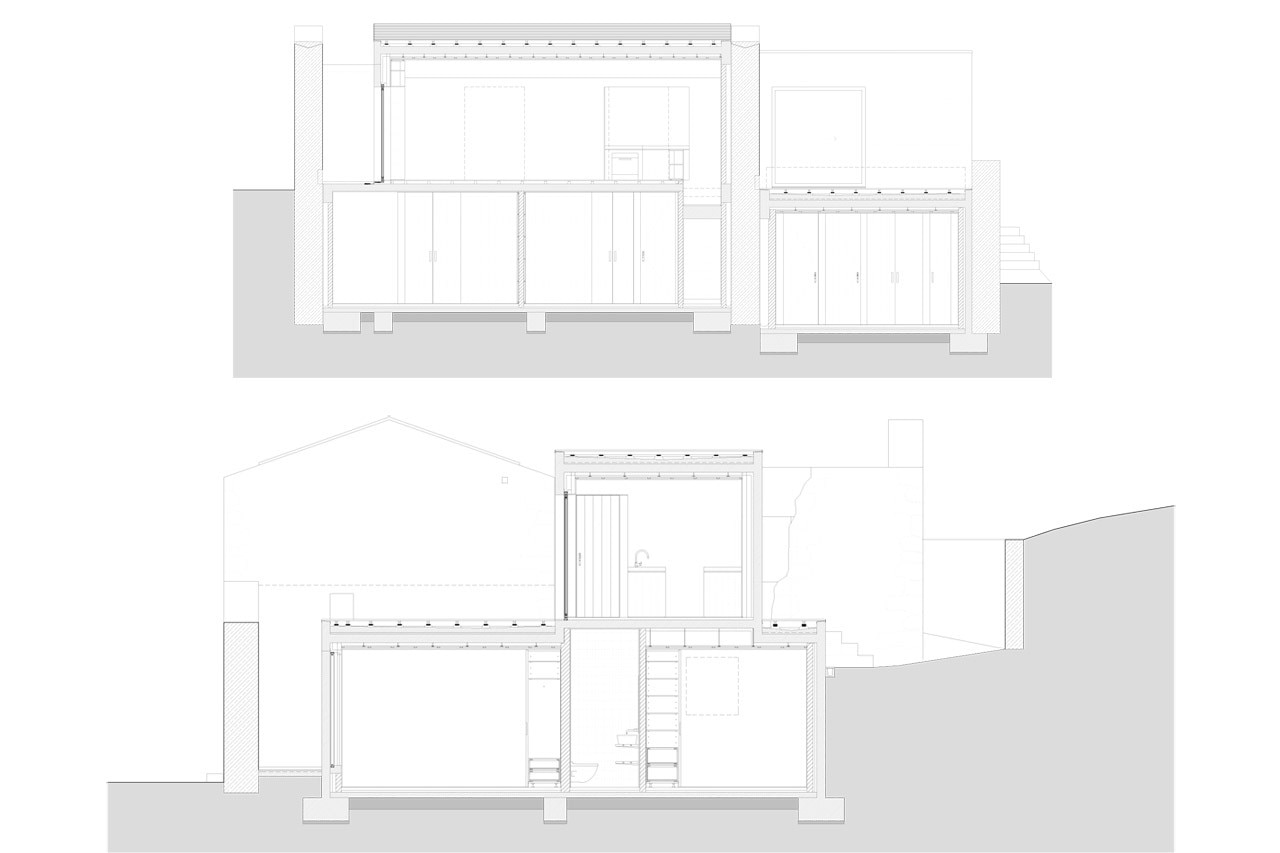
Since the building is approached at the level of the covering, because of the slope of the land, Sami arquitectos designed all the covering of the project as if they were decks, allowing to be used as sitting places or for contemplation.
The house, modelled inside the walls of stone, was designed with generous openings, for light to come inside and to contemplation of the landscape. These openings are sometimes lined up, and sometimes not, with the former openings of the ruin, creating new frames and relations with the original limits of the house.
The project is a movement between a limit line, in stone, and the intervention volumes that are led by that same line, but sometimes flow independently or extend, whenever the necessity of space or of a view is needed.
View gallery
E/C House, São Miguel Arcanjo, Pico Island, Azores, Portugal
Program: holiday house
Architects: Sami arquitectos (Inês Vieira da Silva, Miguel Vieira)
Project team: Bruna Silva, João do Vale Martins, Andreia Luís, Inês Martins, Rita Maria Pinto, Daniel Mentech
Structural Engineering: Ricardo Ferro Antunes and Francisco Mendonça Santos
Sanitary: Paulo Jorge Almeida Oliveira
Electrical Engineering: Hugo Mendonça
Constructor: José Artur Cruz Leal – Unipessoal, Lda
Furniture: Sami with Loja Nord
Area: 214 sqm
Completion: 2013
