Questo ha causato diversi effetti sul nostro modo di vivere. Uno in particolare è caratteristico – ma non esclusivo – delle città messicane: le cosiddette guard-gated communities. Piccole città dentro le città, queste comunità cintate sono dotate di comfort esclusivi all’interno di sistemi chiusi con esplicito divieto di accesso. Sono luoghi che non prevedono alcuna modifica nella loro configurazione, una volta realizzati; la loro forma è stabile, e difficilmente può essere modificata: le sorprese non sono ammesse.
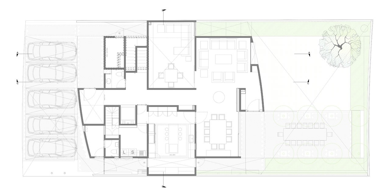
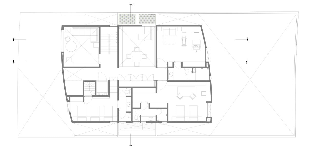
Questo studio di architettura fondato dagli architetti messicani Pablo Pérez Palacios e Alfonso de la Concha Rojas, è spinto da un processo di ricerca. Questa casa, all’interno dell’esclusivo complesso residenziale Cumbres de Santa Fe, possiede alcune peculiarità, nella ricerca di un elemento di eccezione all’interno del contesto.
Con l’intenzione di non mostrare il suo interno, l’edificio risulta comunque sorprendentemente chiaro e ben illuminato, in sostanza, questo progetto cerca di essere molto espressivo soprattutto nelle linee esterne, caratterizzate da un volume massiccio e da una facciata quasi completamente chiusa, attraverso la quale “si riversa la luce che penetra lentamente dentro la casa, come se questo oggetto avesse alcune crepe che lasciano trapelare un’illuminazione naturale verso l’interno”. L’effetto di luminosità è accentuato dall’intonaco di colore nero e dai vuoti piccoli e irregolari. Ed è per questi elementi che le facciate laterali acquistano maggiore importanza. Come spiega Pablo Perez Palacios: “Da un lato l'edificio si restringe o riduce visivamente, mentre dall'altro crea un contrasto intenzionale tra interno ed esterno”.
Un approccio sperimentale, sviluppato da DCPP Arquitectos da alcuni anni, comprende l’utilizzo di una finitura per le facciate che usa una tecnica tradizionale basata su un intonaco integrale di colore nero, a base di colorante naturale mescolato con linfa di cactus. L’effetto, in questo caso, è stata una tonalità mezzo-lavata naturale, per rafforzare l’idea del tempo che passa, il rifiuto di un’architettura fuori dal tempo, una casa vivente e per viverci.
Questa casa è stata costruita in modo accurato, trasformando una serie di problemi in opportunità, è il frutto di una ricerca architettonica continua e di un lavoro consapevole. Quale potrebbe essere il suo impatto a posteriori? Lo vedremo.
Casa Cumbres
México D.F.
Progetto: DCPP Arquitectos
Superficie: 800 sq/m
Team di progetto: DCPP Arquitectos (Pablo Pérez Palacios, Alfonso de la Concha Rojas)
Team di realizzazione: DCPP Construcciones
Realizzazione: 2014
