This has caused several effects in our way of living, one of them is characteristical of our own – but not exclusive – of Mexican cities: the so called guard-gated communities. Little cities themselves, this walled communities have exclusive amenities and conform closed systems with explicitly prohibited free access. They are places that assures no modifications in their configurations once fully developed; their form stabilises, defines and can’t be modified: no surprises.
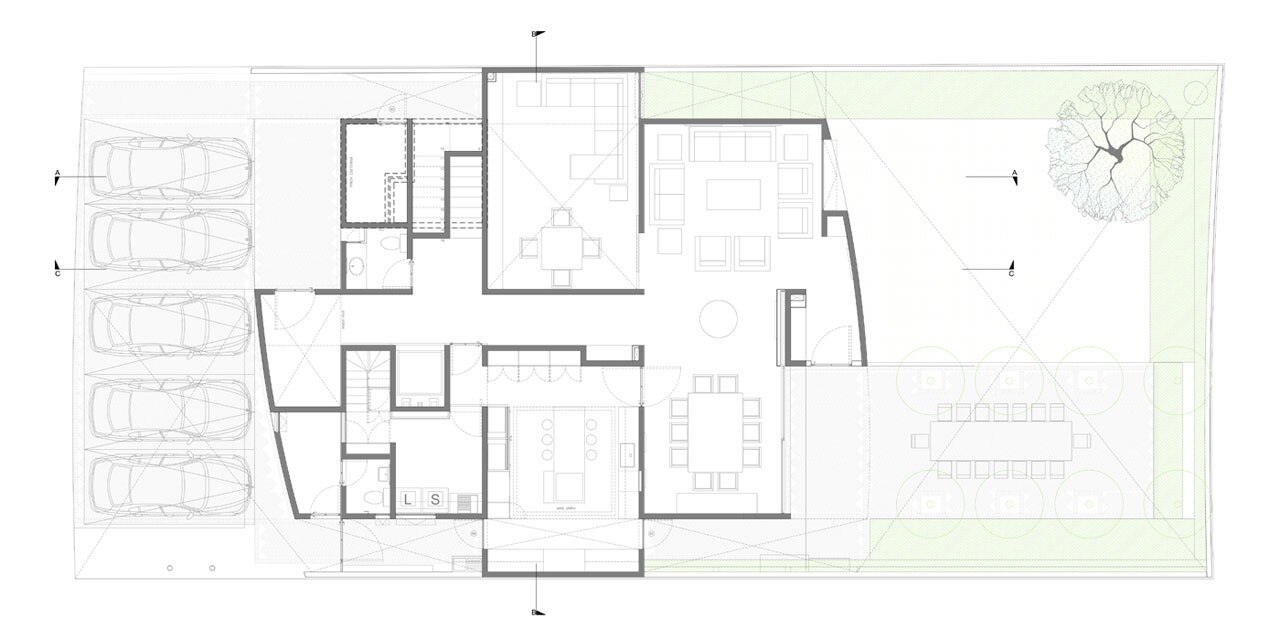
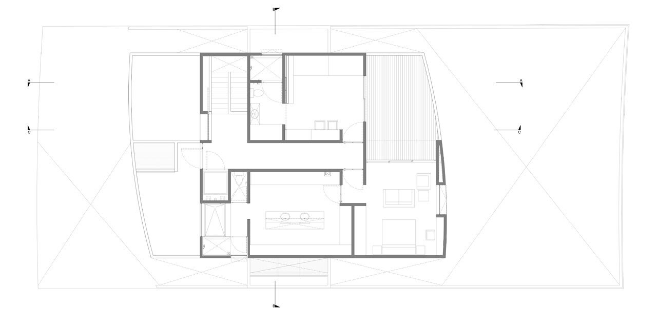
This architectural studio integrated by the Mexican architects Pablo Pérez Palacios and Alfonso de la Concha Rojas, is propelled by a process-centered architectural research. This house, at the exclusive housing development Cumbres de Santa Fe, possess some peculiarities, in the savage quest for outstanding that implies lying there.
Intending to not show much of its interiority, surprisingly clear and well illuminated, essentially this project looks for being very expressive at its exteriors. A massive and almost closed facade, where “light pours and slowly penetrates this house, like if this object has some cracks or spotted perforations generating an interior natural lighting that you can’t tell exactly where it comes from”- accentuated by the integral black colored plastering and the little and irregular voids. And is because these elements, that the lateral adjoining façades acquire more importance. As Pablo Pérez Palacios indicates: “trying, on one hand, to make the building shrinks or visually reduce and on the other hand presents itself as an intention to contrast interior with exterior”.
Some kind of an experimental approach, developed by DCPP Arquitectos – for some years now –, is the utilisation of a finishing of the facades with some traditional technique based on an integral black color plaster, made from a natural colorant mixed with cactus sap intended to be a positioning against the modern white box. This time caused natural half-washed effect, reinforces the idea of time passing, rejecting an architecture devoided of time, as in an architectural model, raising the issue, too, of a living house: a house for living.
This house is an accurately built piece, that inquires in our times, in a set of particular problems and opportunities, at the same time, a continued architectural research and a pretty self-conscious work. What could be the impact of this house in the posterior work of this architectural group? We should see.
Casa Cumbres
México D.F.
Design: DCPP Arquitectos
Area: 800 sq/m
Project team: DCPP Arquitectos (Pablo Pérez Palacios, Alfonso de la Concha Rojas)
Building team: DCPP Construcciones
Construction: 2014
