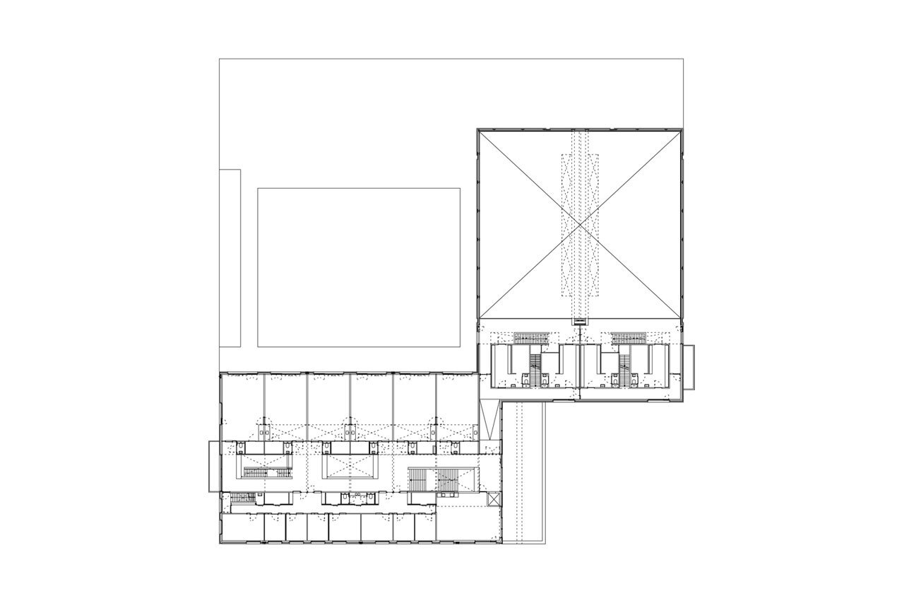
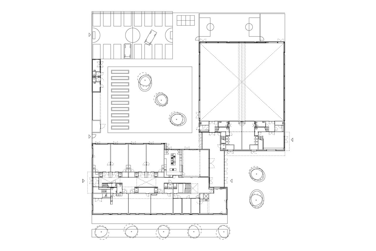
Il progetto si compone di due volumi debolmente collegati, un blocco compatto due piani, che ospita la scuola vera e propria, e un palazzetto dello sport. Entrambi i volumi sono collocati agli angoli estremi del grande lotto.
Gli edifici sono completati da due spazi esterni semi-coperti. Di fronte alla via Spinoza, la piazza urbana aperta è utilizzata come parco giochi, mentre sul lato opposto è stato realizzato un grande giardino piantumato da utilizzare come spazio per la ricreazione e il gioco, o come aula all’aperto per le lezioni sull’ambiente, parte del programma formativo. Il progetto delle facciate, degli ingressi e del basamento è inteso a stabilire relazioni tra interno ed esterno.
Il programma di studi si concentra su tre temi principali: vivere, lavorare e svago. Queste materie sono insegnate in aule specifiche, pensate come soggiorno, cucina e laboratorio artistico. Le aule sono distribuite al piano terra stabilendo, in maniera letterale, il collegamento tra la scuola e il mondo esterno. Gli altri spazi, tra cui le aule tradizionali, hanno una dimensione più privata e affacciano sul giardino.
Particolare attenzione è stata dedicata ai sistemi di distribuzione, al centro dell’edificio. Grandi lucernari consentono alla luce del giorno di raggiungere il piano terra, rispettando il bisogno degli studenti di poter stare in un ambiente tranquillo, evitando rumori o colori e forme troppo vivaci.
Galleria
2 began grond
3 eerste verdieping
118 W 300 130703 tegels1
A.J. Schreuderschool, Rotterdam Lombardijen
Tipologia: scuola
Architetti: Korteknie Stuhlmacher Architecten
Consulente impiantistico: Adviesbureau vd Weele
Impresa: vd Heijden BV, Schaijk
Committente: Stichting PCBO
Completamento: 2013
