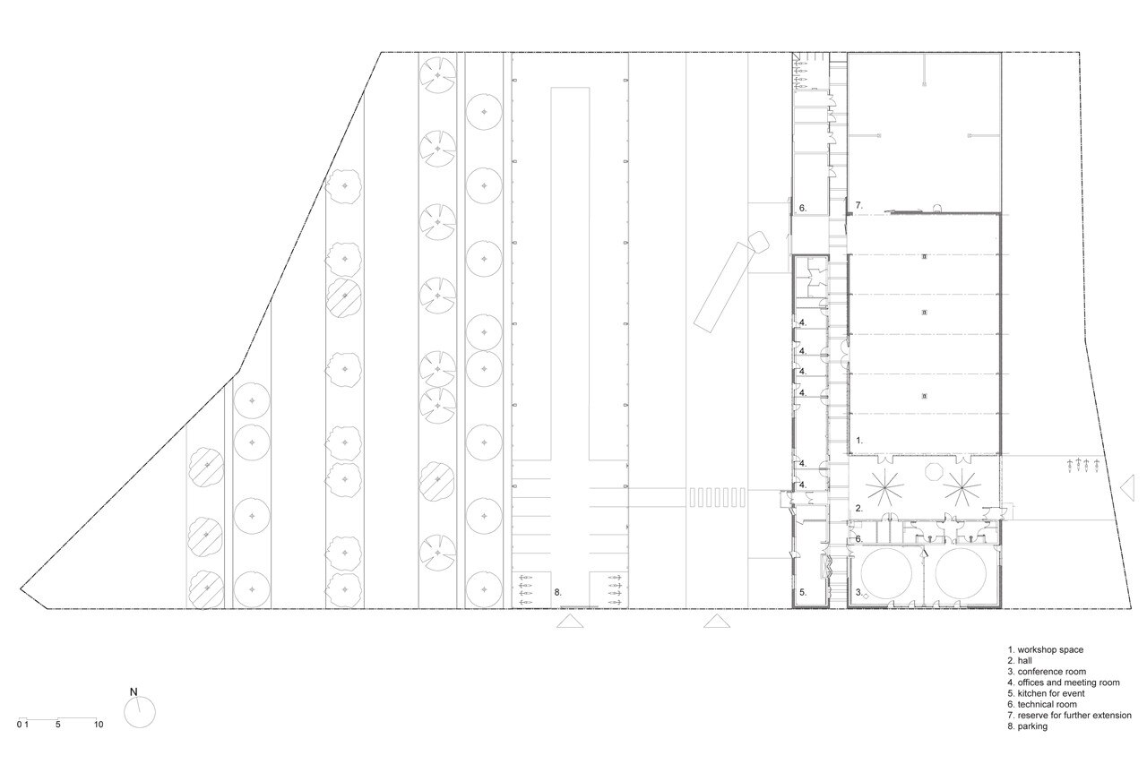
Il grande spazio tecnologico è inserito all’interno di una cornice in legno, una palizzata che nasconde i segreti dell’innovazione, nascondendo alla vista gli spazi esterni e i macchinari in copertura. Un rivestimento e una recinzione al tempo stesso, che offre la possibilità di una futura espansione sul fronte nord.
L’edificio e i suoi ampliamenti futuri sono stati pensati in maniera organica, progettando le future superfici e la recizione già durante la fase di disegno. L’involucro edilizio e la sua immagine risultano così già stabiliti.
Il progetto è pensato in un’ottica modulare: la palizzata esterna è dotata di grondaie che possono essere aperte per la riconfigurazione mentre lo spazio interno può essere trasformato mediante pareti mobili.
Galleria
S:\PRESS\Dossiers de presse\Proxinnov\PRI-DCE-coupes Model (1)
S:\PRESS\Dossiers de presse\Proxinnov\PRI-DCE-coupes Model (1)
S:\PRESS\Dossiers de presse\Proxinnov\PRI-DCE-coupes Model (1)
S:\PRESS\Dossiers de presse\Proxinnov\PRI-DCE-coupes Model (1)
S:\PRESS\Dossiers de presse\Proxinnov\PROXINOV DCE-MASSE 01 09 11 Model (1)
S:\PRESS\Dossiers de presse\Proxinnov\COUPE_COM Model (1)
Proxinnov, piattaforma regionale per l’innovazione, La Roche-sur-Yon, Loira, Francia
Tipologia: showroom tecnologico per le aziende
Architetti: Block Architectes
Committente: SPLA – Région des pays de la Loire
Completamento: 2013
