Questi tre elementi, che insieme creano un senso di squilibrio, evidenziano il forte simbolismo del progetto. La sottile stratificazione e il disallineamento delle varie forme, piano su piano, risulta sconcertante per il visitatore e sembra sfidare le leggi della gravità.
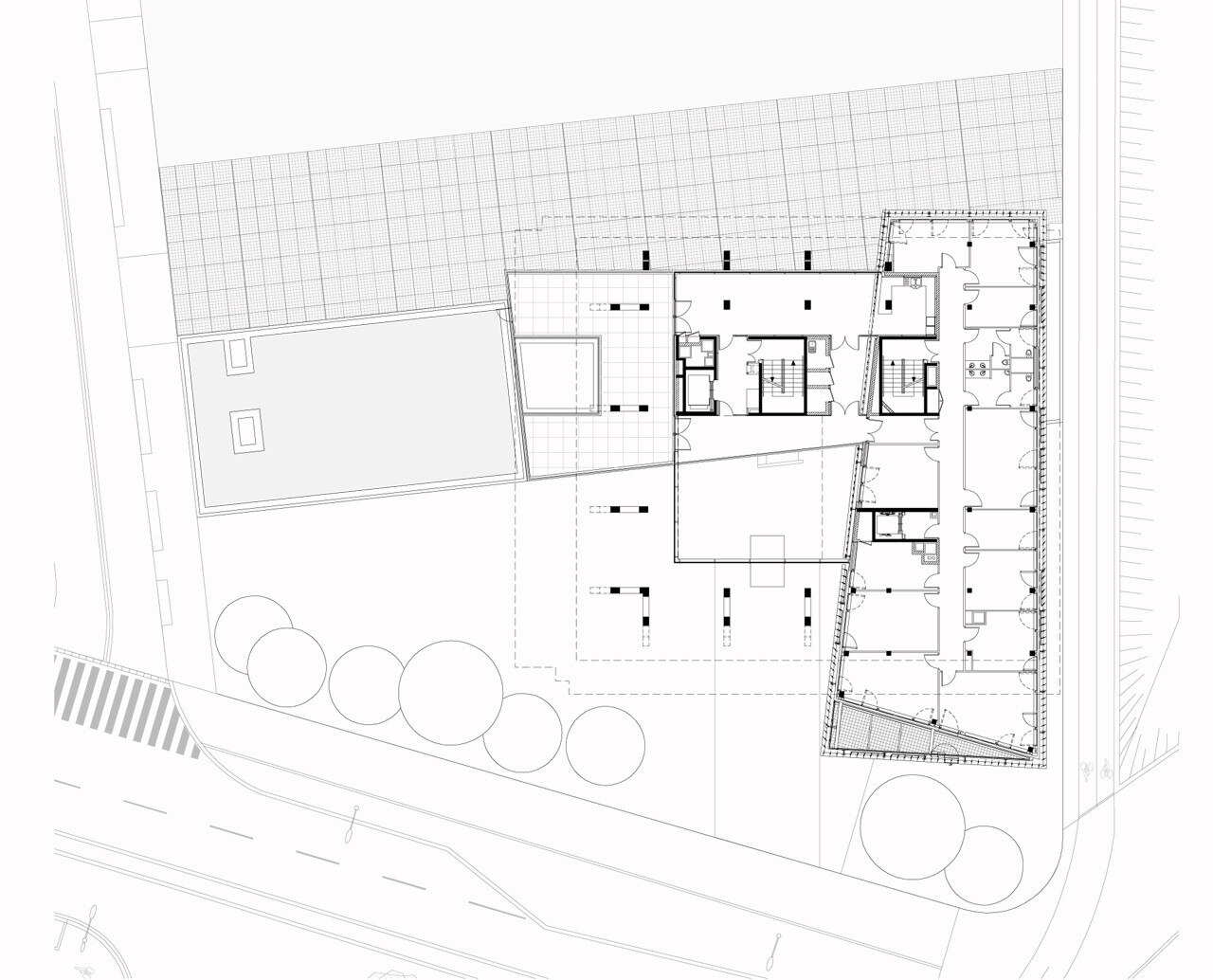
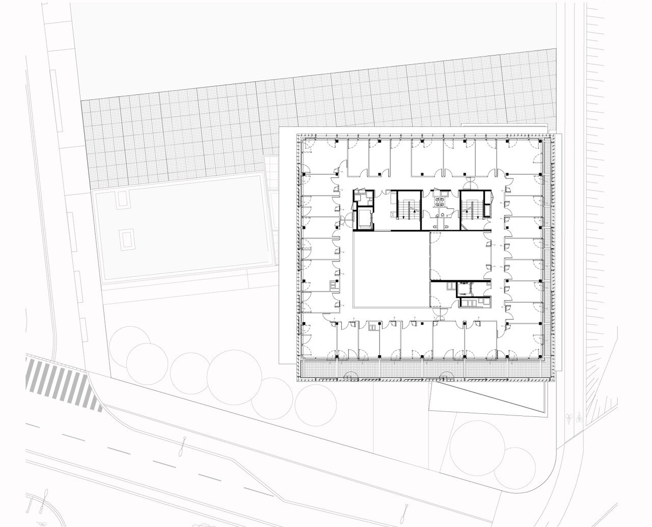
Il vuoto creato dai tre componenti conferisce all'edificio un senso di spazialità nascosta. Il posizionamento di ciascun elemento pone in relazione la struttura e gli spazi interni con l'area urbana circostante.
La hall d'ingresso e l'atrio funzionano come luoghi di aggregazione, dove il pubblico e gli impiegati possono incontrarsi e scambiare idee.
L'edificio non dispone di un sistema di climatizzazione, ma è fornito di un impianto di raffreddamento che funziona durante le ore notturne: di notte le porzioni superiori dell'atrio e degli uffici si aprono per creare un flusso di aria provocato dall'effetto camino. L'atrio centrale è quindi utilizzato dalla costruzione come una sorta di apparato respiratorio.
Galleria
Z:\20- Diffusion-Publi-Book\21- Publication old 3-AMC Equerre d'argent\BOR AMC 2013\02-Travail\BOR-AQU PLN MASSE 2 (AMC) R+0
Z:\20- Diffusion-Publi-Book\21- Publication old 3-AMC Equerre d'argent\BOR AMC 2013\02-Travail\BOR-AQU PLN (AMC) R+0 A4 (1)
Z:\20- Diffusion-Publi-Book\21- Publication old 3-AMC Equerre d'argent\BOR AMC 2013\02-Travail\BOR-AQU PLN (AMC) R+4 A4 (1)
Z:\20- Diffusion-Publi-Book\21- Publication old 3-AMC Equerre d'argent\BOR AMC 2013\02-Travail\BOR-AQU PLN (AMC) R+1 A4 (1)
Z:\20- Diffusion-Publi-Book\21- Publication old 3-AMC Equerre d'argent\BOR AMC 2013\02-Travail\BOR-AQU CPES (AMC) CPE AA A4
Sede direzionale Aquitanis, Bordeaux, Francia
Architetti: Platform Architectures
Architetti associati: Reichen & Robert & Associés
Area: 4.918 mq
Completamento: 2013
