Galleria
AEG-DE-121208 publication
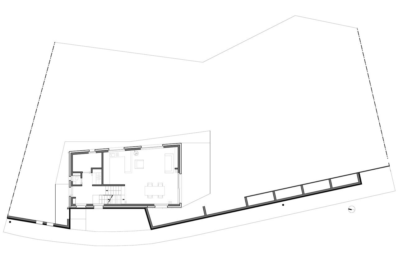
And’rol, Wall House, Bruxelles, Belgio, pianta del piano terra
Wall House
Bruxelles, Belgio
Programma: residenza unifamiliare
Area: 138 mq
Architetti: And'rol
Completamento: Luglio 2013
