Dall'altra parte dell'Oceano Atlantico, in Medio Oriente e, più precisamente in Cisgiordania, un'associazione italiana (Vento di Terra Onlus, con sede a Rozzano, in provincia di Milano) e un gruppo di progettisti raggruppati sotto la sigla Ar.Cò fanno molto di più che combattere con i sensi di colpa: agiscono nella realtà. Hanno realizzato, a sud di Gerusalemme est, una struttura coraggiosa destinata all'educazione di 130 bambini tra i sei e gli undici anni, bambini che appartengono alla comunità beduina di Abu Hindi. Si tratta di un insieme di 2.700 persone che vive in piccoli gruppi isolati: questo villaggio, infatti, non ha l'allacciamento alla rete elettrica.
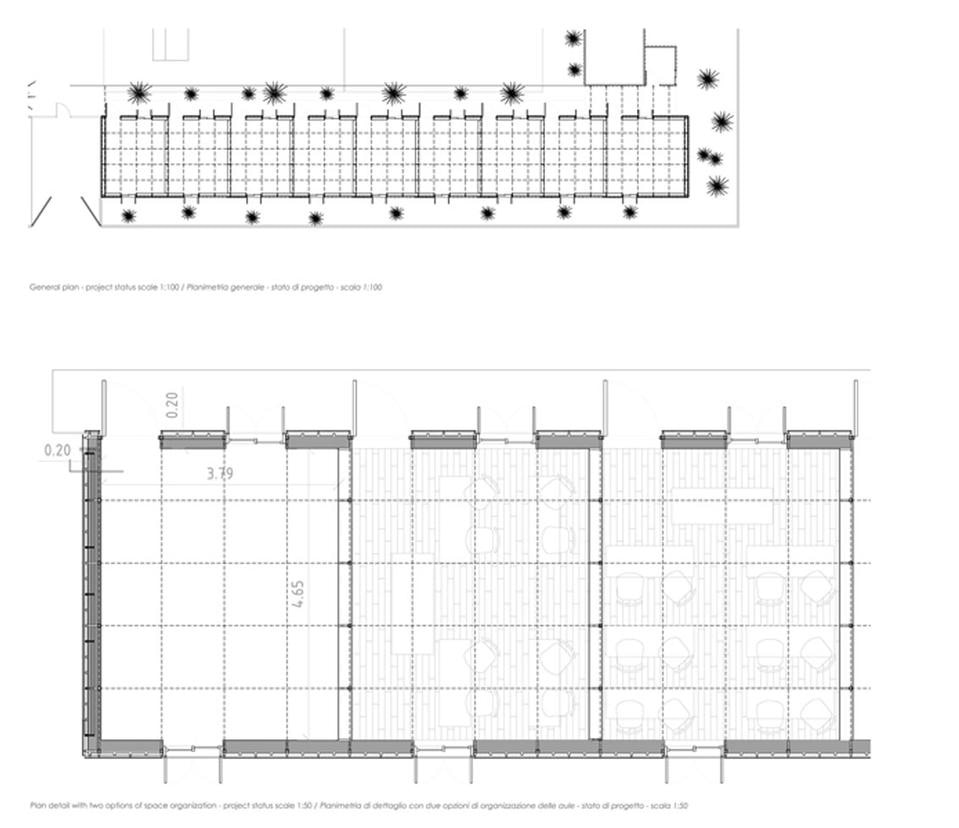
I progettisti agiscono con realismo. Utilizzano materiali davvero rudi (intonaco di calce, cannucciato di bambù, argilla e paglia, lastre di alluminio zincato) per ristrutturare un edificio esistente dotato di nove aule. Realizzano così una costruzione in grado di resistere alle temperature del deserto: in queste zone, tra novembre e febbraio, la temperatura scende sotto i dieci gradi e arriva a toccare lo zero di notte. Tra fine aprile e giugno, invece, può raggiungere anche i 45 gradi.
Ciò che colpisce è l'intelligenza con la quale i progettisti hanno accostato delle materie umili per ottenere, tramite i colori e le tessiture delle superficie, un'architettura che segnala nel deserto la sua presenza come punto di partenza per un futuro migliore. Allo stesso tempo, è un progetto in progress che si amplierà nel tempo con una biblioteca, una sala docenti e gli uffici della direzione didattica.
Laura Bossi
La scuola nel deserto, Wadi Abu Hindi, Gerusalemme Est
Sviluppo del progetto architettonico: Ar.Cò, Cooperazione Architettonica
Enti finanziatori e partner: MCA Mario Cucinella Architects; CEI, Conferenza Episcopale Italiana; Comuni di Bresso (MI), Cesano Boscone (MI), Corsico (MI), Pavia, Pescara, Rozzano (MI); Associazione Culturale Art Kitchen; Associazione Culturale Namastè, Sister of Bethany – Jerusalem; Rabbies for Human Rights, Nazca coop per un commercio equo e solidale, Pax Christi, Fund Raising dell' Associazione Vento di Terra Onlus
Partner locale: Jerusalem Beduin Cooperative Commeetee
