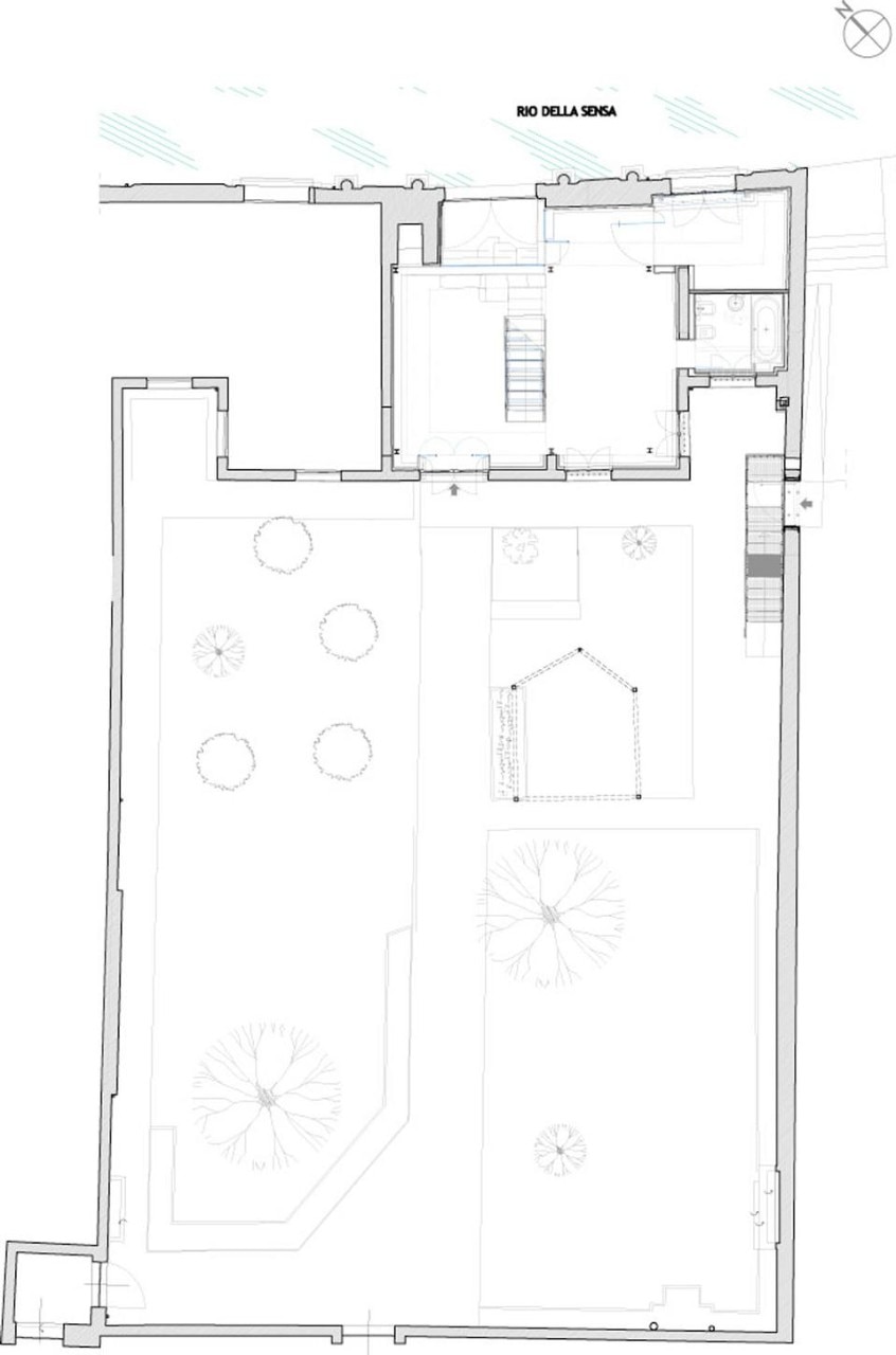
Il Casin in veneziano è qualcosa tra la barchessa e un magazzino collegato a un palazzo. La facciata del Longhena fungeva da accesso dall'acqua per il palazzo: abbiamo così deciso di partire proprio da questo elemento per concepire un intervento di radicale trasformazione.
Si accede alla porta sull'acqua tramite un nuovo sistema di gradini realizzati in blocchi di pietra d'Istria che, collegandosi a quelli già esistenti, consentono di accedere al livello inferiore della riva. Questa soluzione si rende necessaria in quanto il pavimento interno è stato rialzato. Ciò ha consentito di poter mantenere aperto il gran portone ligneo sull'acqua, mantenuto fedele nelle fattezze e nella consistenza originale, al fine di far penetrare la luce all'interno.
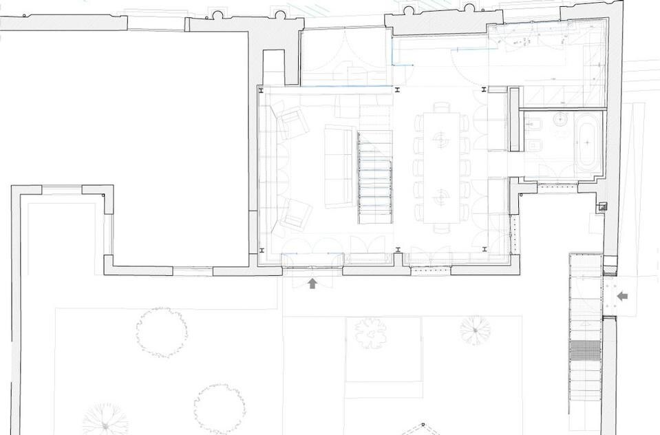
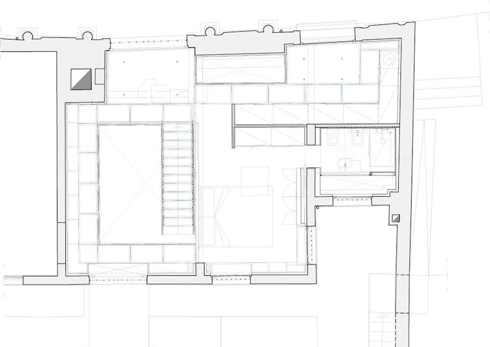
Attraverso questo spazio si accede tramite un 'cubo' di vetro all'abitazione: questa bussola favorisce l'ampliarsi della luce all'interno, altrimenti poco illuminato, e la diffonde anche per riflettenza. Il piano terra è un unico open space che ospita il soggiorno e la cucina, a cui si accede attraverso un grande bilico in vetro, e un bagno nascosto. La scala in acciaio verniciato bianco e vetro divide gli ambienti senza interroperne la continuità e porta al soppalco superiore. Quest'ultimo, realizzato in carpenteria metallica, si appoggia ai nuovi, leggerissimi pilastri senza mai collegarsi alle murature originarie del manufatto che danno sul canale e verso il giardino.
Una grande libreria, costruita artigianalmente e che contiene quasi 10.000 volumi, circonda perimetralmente lo spazio a doppia altezza della zona giorno con delle passerelle in vetro e acciaio. Le pareti sono trattate a calce rasata bianca, materia che favorisce la diffusione della luce sia naturale che artificiale. I materiali sono pochi e appartengono alla tradizione veneta come la pietra d'Istria e la trachite euganea, combinati con acciaio e vetro.
Filippo Caprioglio
Trasformazione di Casin di Palazzo Lezze
Progetto: Filippo Caprioglio, Caprioglio Associati Studio di Architettura
Collaboratore: Francesco Soldo
Anno di realizzazione: 2008
