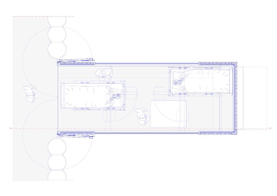
The CURA system, developed by an interdisciplinary team of researchers guided by Carlo Ratti with Italo Rota, involves the use of containers converted into compact intensive care units for patients with respiratory diseases. These rooms, transportable everywhere, are then connected to each other thanks to an inflatable structure able to configure modulations from 4 to 40 beds. They can be positioned close to a hospital, as in a car park, or even create autonomous infrastructures of variable dimensions.
During the international emergency against Covid-19, the methods used in field hospitals were mainly: either temporary structures, such as hospital tents, or prefabricated biocontainment units, which are too expensive and time-consuming. The open-source CURA project (acronym for “Connected Units for Respiratory Ailments”) is halfway between these two solutions that have been possible until now, providing a rapid modular device that can be installed at low cost, but at the same time safe for medical staff thanks to biocontainment devices with a negative pressure system.
- Design and Innovation:
- CRA-Carlo Ratti Associati with Italo Rota
- Medical Engineering:
- Humanitas Research Hospital
- Medical Consultancy:
- Policlinico di Milano
- Master Planning, design, construction and logistics support services:
- Jacobs
- Visual identity and graphic design:
- studio FM milano
- Digital media:
- Squint/opera
- Logistics:
- Alex Neame of Team Rubicon UK
- MEP Engineering:
- Ivan Pavanello of Projema
- Medical Consultancy:
- Dr. Maurizio Lanfranco of Ospedale Cottolengo
