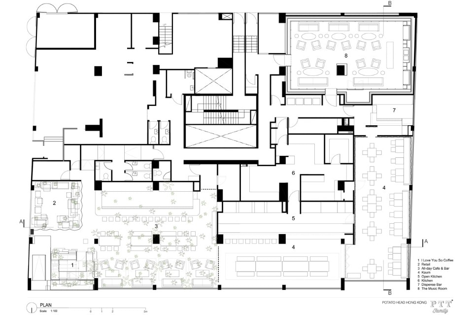
The entrance is marked with a coffee counter that opens to the street and a retail space where the architect’s now-iconic metal frames and boxes create distinct but open spaces. Suspended from the ceiling are Fujimoto’s stainless steel planters, creating the illusion of a floating forest over a space that imperceptibly appears to have no boundaries.
The interior’s piece de resistance is in Kaum, PTT Family’s modern Indonesian dining concept, where over 700 hand-painted panels from Toraja flank the ceilings and walls. These panels were made by families of craftsmen and commissioning this staggering number of carvings helped ensure the skill is passed on to the younger generations of the village that made them. While the black colour of the panels is actual paint, the yellow and orange hues are taken from local stones. The timber (kayu uru) used for the panels are also grown locally in Toraja.
Potato Head, Hong Kong
Program: mixed use
Architect: Sou Fujimoto
Completion: 2016
