Risultati
Nessun elemento trovato
Ricerca troppo corta
Sou Fujimoto: Potato Head
Potato Head Hong Kong presenta un sapiente mix di influenze indonesiane tradizionali e globali contemporanee, con pesante legno teak lavorato artigianalmente e leggere strutture metalliche.
Potato Head Hong Kong presenta un sapiente mix di influenze indonesiane tradizionali e globali contemporanee, con pesante legno di teak lavorato artigianalmente e leggere strutture metalliche. Lo spazio a uso misto evoca una sensazione di domesticità, con aree distinte che fluiscono organicamente le une nelle altre.
Sou Fujimoto, Potato Head, Hong Kong, 2016
Fujimoto esplora il concetto di interno-esterno in una delle città più densamente popolate al mondo. Applica alle vetrate esterne pattern che riprendono i motivi geometrici tradizionali dei serramenti di Hong Kong, coprendo l’intera struttura. L’effetto finale è una facciata omogenea e trasparente che non si impone sull’intorno, ma si distingue silenziosamente. Da lontano il negozio appare come un oggetto bianco e luminoso.
Sou Fujimoto, Potato Head, Hong Kong, 2016
Entrando troviamo una caffetteria e un negozio in cui le ormai iconiche strutture di metallo dell’architetto giapponese creano spazi distinti ma aperti e interconnessi. Sospese a soffitto ci sono delle fioriere di acciaio inox che creano l’illusione di una foresta galleggiante su uno spazio che sembra non avere confini.
Sou Fujimoto, Potato Head, Hong Kong, 2016
Nella sala centrale oltre 700 pannelli dipinti a mano provenienti da Toraja, in Indonesia, ricoprono soffitti e pareti. Questi pannelli sono fatti con tecniche tradizionali che le famiglie artigiane si tramandano da generazioni. Mentre il nero dei pannelli è verniciato, le tinte gialle e arancioni sono prese da pietre locali. Anche il legno (kayu uru) utilizzato per i pannelli è coltivato a Toraja.
Galleria
SHARE
PIN IT
SHARE
PIN IT
SHARE
PIN IT
SHARE
PIN IT
SHARE
PIN IT
Sou Fujimoto, Potato Head, Hong Kong, 2016
SHARE
PIN IT
Sou Fujimoto, Potato Head, Hong Kong, 2016
SHARE
PIN IT
Sou Fujimoto, Potato Head, Hong Kong, 2016
SHARE
PIN IT
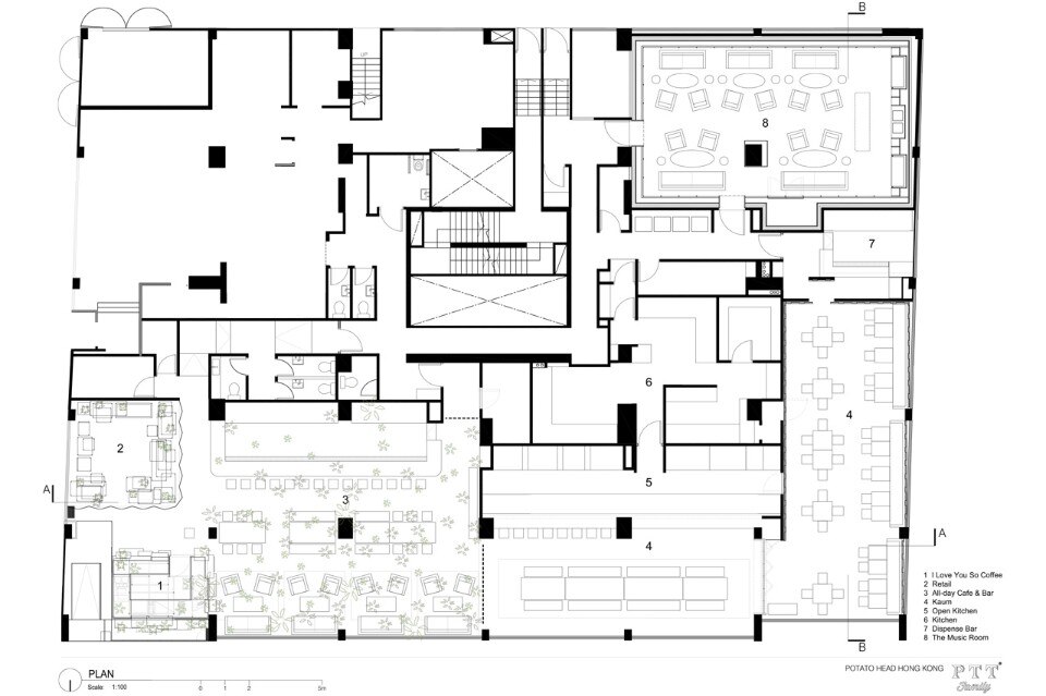
D:\DATA PTT\Projects\PTT Folk HK\Publication\Cleaned up dwgs\Plan_recover Model (1)
Sou Fujimoto, Potato Head, pianta
SHARE
PIN IT
D:\DATA PTT\Projects\PTT Folk HK\Publication\Cleaned up dwgs\Plan_recover Model (1)
Sou Fujimoto, Potato Head, sezioni
SHARE
PIN IT
Potato Head, Hong Kong Tipologia: spazio a uso misto Architetto:Sou Fujimoto Completamento: 2016