The owners of the house explicitly demanded that only traditional natural materials would be used: wood, sheep wool for thermal insulation, clay plaster, etc. The only modern elements were the wood window frames with stratified windows and the technical equipments.
The rebuilding of the house on the new site was made using traditional craftsmen from Maramureș (the area where the house was brought from).
View gallery
A desen _ Independent
ArhiBox, Wooden house reconversion, Vultureni, Cluj, Romania. Section
Vultureni gozman planuri 2015 0
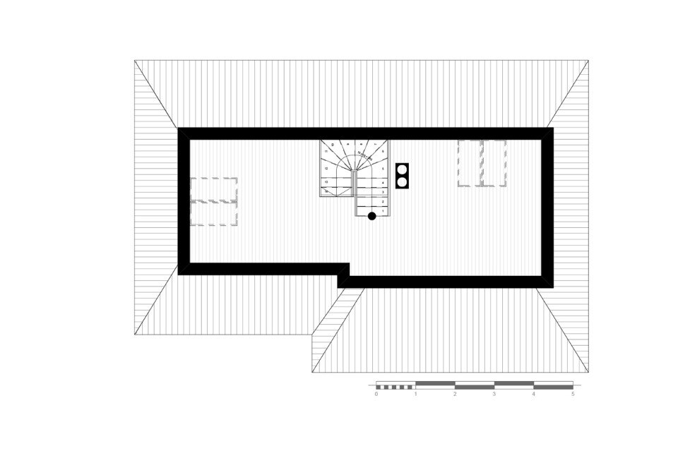
ArhiBox, Wooden house reconversion, Vultureni, Cluj, Romania. Basement floor plan
Vultureni gozman planuri 2015 0
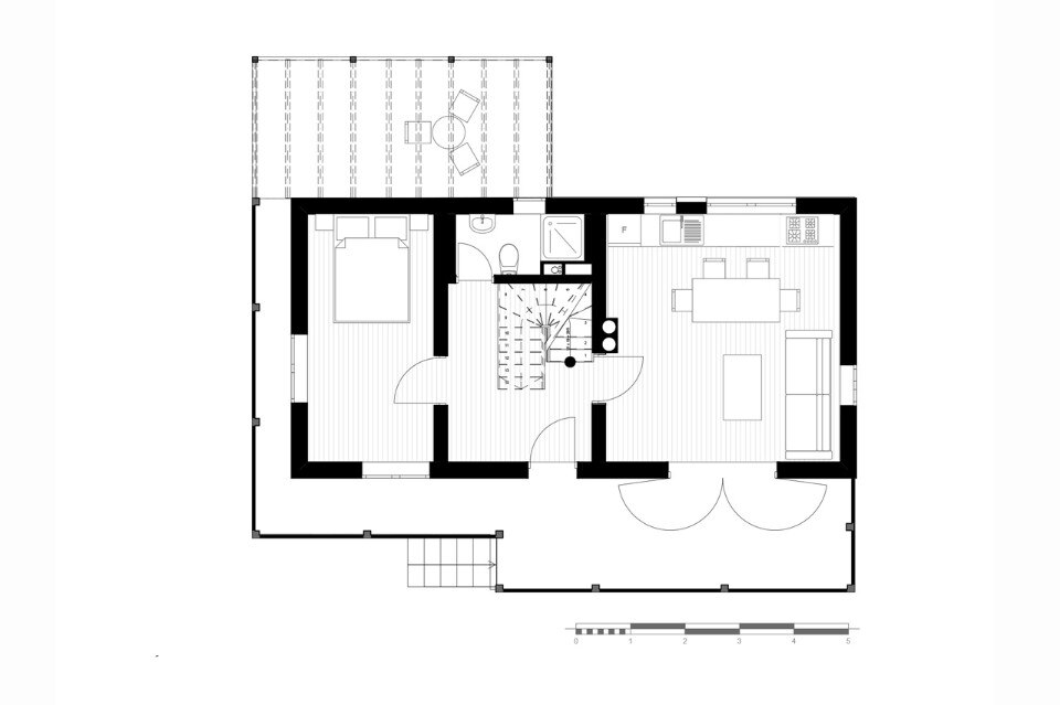
ArhiBox, Wooden house reconversion, Vultureni, Cluj, Romania. Ground floor plan
Wooden house reconversion, Vultureni, Cluj, Romania
Program: residential
Architects: ArhiBox
Project Architects: Mihai Racu, Calin Lada
Structural Engineer: Marius Soflete
Collaborators: Horatiu Racasan, Adela Borota, Calin Santa, Razvan Stoian
Water infrastructures, electricity and heating: Cornel Stanciu
Area: 214 sqm
Completion: 2016
