Galleria
A desen _ Independent
ArhiBox, Riconversione di una casa di legno, Vultureni, Cluj, Romania. Sezione
Vultureni gozman planuri 2015 0
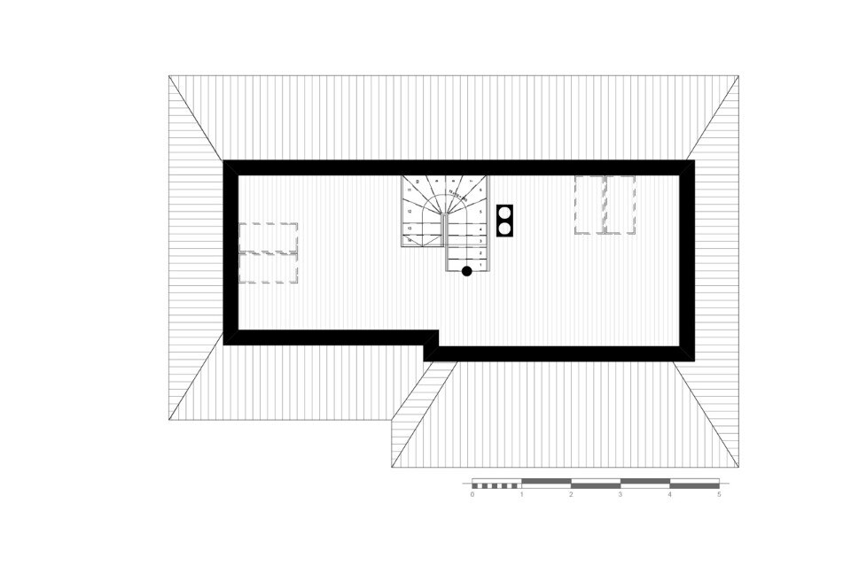
ArhiBox, Riconversione di una casa di legno, Vultureni, Cluj, Romania. Pianta del piano interrato
Vultureni gozman planuri 2015 0
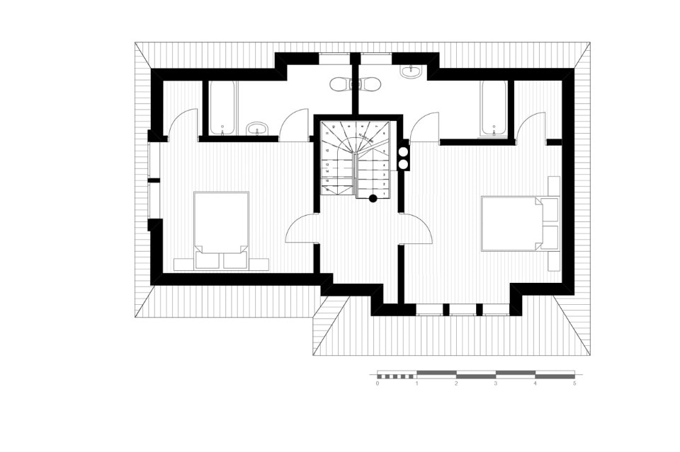
ArhiBox, Riconversione di una casa di legno, Vultureni, Cluj, Romania. Pianta del piano terra
Riconversione di una casa di legno, Vultureni, Cluj, Romania
Tipologia: residenza
Architetti: ArhiBox
Responsabili di progetto: Mihai Racu, Calin Lada
Ingegneria strutturale: Marius Soflete
Collaboratori: Horatiu Racasan, Adela Borota, Calin Santa, Razvan Stoian
Impianti: Cornel Stanciu
Area: 214 mq
Completamento: 2016
