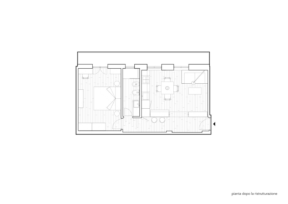
In the the historic Ortica district in Milano, once the first industrial suburb to the east of the city, now characterised by a strong cultural identity, the Dedabo studio, founded by Martina Dalla Bona and Luca Decaminada, has completed the renovation of a 55 sqm two-room apartment. The flat, originally built in the 1980s with a conventional layout with the main spaces at the ends – living room and bedroom – and services in the centre – the kitchen and bathroom – was redesigned to meet the needs of the owner, a young musician.
The redefinition of the layout was radical, with particular attention not only to the main rooms, but also to the distribution spaces, valorized as the true protagonists of the project.
The fulcrum of the intervention is a Franco Albini inspired dividing shelving system, redefining the “boundaries” between different rooms, separating and connecting at the same time. The light and colourful structure, with red lacquered wooden uprights and suspended mint-coloured shelves, allows natural light to filter freely through the flat, creating a refined play of transparencies and perspectives.
The new layout develops around an open space living area, while the minimalist design of the kitchen contrasts the black surfaces of cabinets with custom-made green cement and marble grit countertop and wall cladding. Natural wood flooring runs throughout the house, creating a warm and contemporary material continuum. The bathroom has also been carefully redesigned, with a rationalized layout and distinctive wall coverings, a reeded ceramic surface in green tones giving the room depth and movement.
Finally, special care has been devoted to the flat's soundproofing: the perimeter walls and those bordering adjacent units, given their reduced thickness, have been integrated with sound-insulating glass wool panels to improve acoustic comfort and guarantee privacy.
