Design firm: Messner Architects
Project name: Casa Conte
Location: Auna di Sotto, Renon, Bolzano, Italy
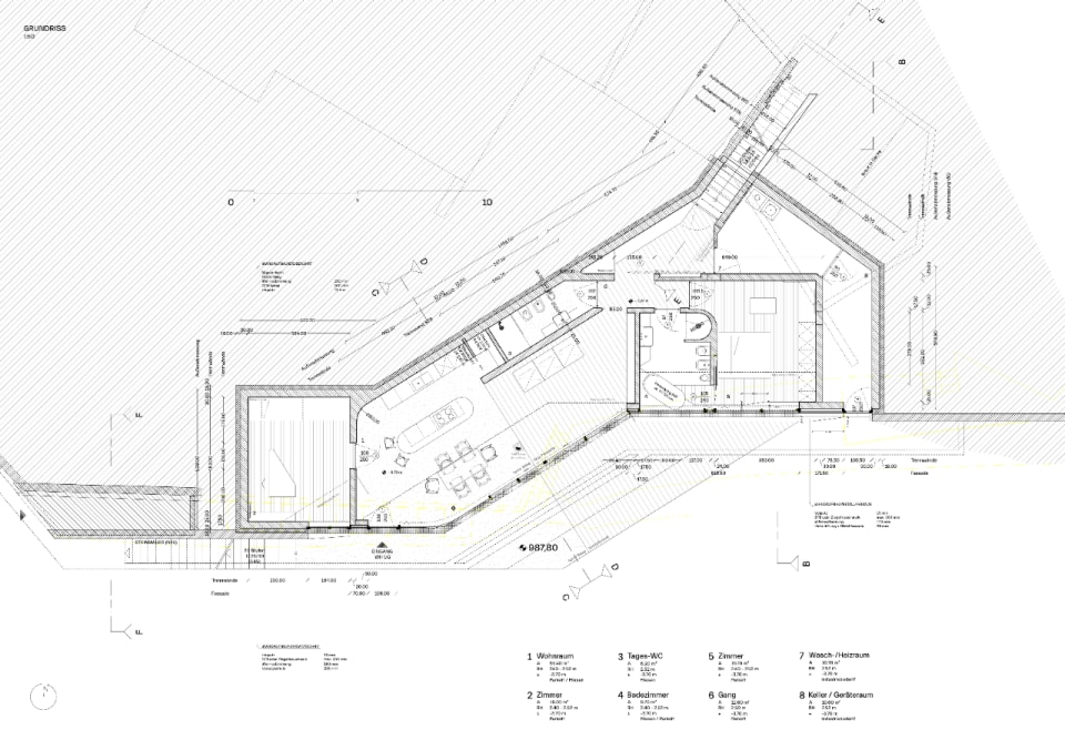
Set in a mountain landscape dotted with rural buildings, Messner Architects has completed an extension to a 1970s house that boasts a clear and unmistakable contemporary style. The new single-storey structure, located below the existing dwelling and connected to it at ground level, is nestled into the slope and offers unobstructed views of the Dolomite scenery to the south and south-east. The new structure is almost hidden, revealing itself through vertical partitions in local stone that are interrupted by large glass surfaces. A projecting exposed concrete roof, designed to control solar radiation, crowns the structure and draws a sinuous line that winds through the vineyards, giving the composition a dynamic character with deconstructivist references. Inside, the warm texture of the chestnut and oak wood cladding on the floors, ceilings and doors contrasts with smooth plastered surfaces, ceramic cladding and monochrome furnishings.
