In Rosà, a residential neighbourhood near Bassano del Grappa in the province of Vicenza, Didonè Comacchio Architects designed a single-family home that "plays" with the addition and subtraction of pure, neutral volumes, as well as visual intertwining. This is according to a compositional principle that recalls a "Neoplastic" matrix.
The concise, rigorous volume is closed towards the street and open towards the garden. It is characterised by the aggregation of elementary geometric shapes in light tones that are assembled to create lively contrasts between solids and voids, transparencies, and internal perceptual interpenetrations. This creates a dualism between the protective, introverted external envelope and the fluid, articulated internal layout.
This concise and rigorous volumetry is characterised by the assembly of elementary geometric shapes in light tones to create lively contrasts between solids and voids.
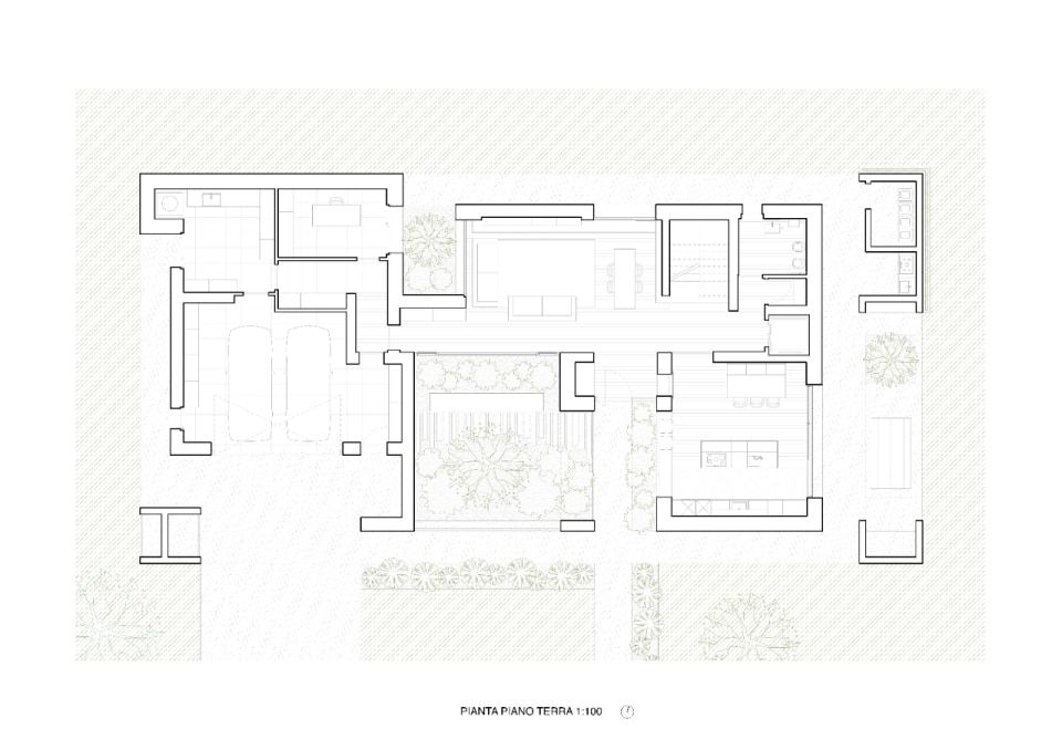
A thick concrete slab corresponding to the first-floor ceiling emphasises the horizontal flow of the composition and divides the volume into two levels. The ground floor comprises the communal living area to the west and the service areas to the east. On the upper level, the 'box-like' sleeping area to the west and the panoramic terrace on the opposite side appear to 'rest' on the floor. A series of tree-lined patios cut into the slab create voids that allow natural light to penetrate deep into the rooms and offer glimpses of the sky.
A palette of a few selected natural materials gives the composition a warm and solid character. On the outside, the light-coloured brick cladding, handcrafted and laid dry, alternates with jalousies that filter the view to the outside and interacts with the smooth concrete surfaces of the service areas and the burnished metal cladding of the west volume, which is also used in the window frames.
Inside, the light, soft surfaces of the light grey walls and the 'suspended' concrete staircase wall form a striking colour contrast with the walnut flooring, wood panelling and large sliding doors.
An interplay of transparencies and views enhances the fluid and interconnected character of the spaces, thanks to perceptual trajectories that pierce through the glass-enclosed patios and project the gaze from the viewpoint towards the surrounding domestic environments and even beyond, towards the landscape.
- Project:
- GM House
- Architectural design:
- Didonè Comacchio Architects - Paolo Didonè, Devvy Comacchio, Paola Meneghetti
- Engineering:
- I.S. Tessarolo Associates - Riccardo Trentin
- Construction:
- Meneghetti Construction Srl
- Facilities:
- Gianpietro Crosetta
