In the heart of Paris's 17th arrondissement, near Place du Brésil, Atelier Quinze Vingts has transformed a historic building on a busy street into an elegant office complex in tune with the needs of contemporary workspaces.
The most compelling aspect of the project lies in the precision and refinement of its façade details: the new architecture dialogues with the existing through a carefully calibrated material and formal balance, showing how contemporary design can integrate into its context with respect and finesse without sacrificing a strong architectural identity.
The project’s most interesting quality is precisely its refusal to compromise on a strong architectural identity, expressed through the precision and refinement of its façade details.
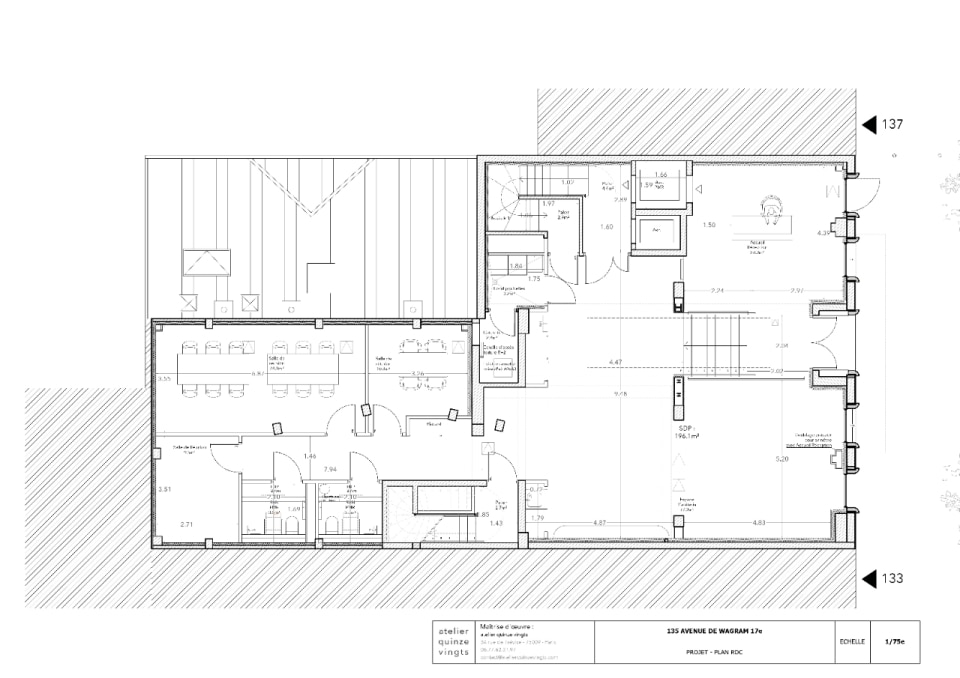
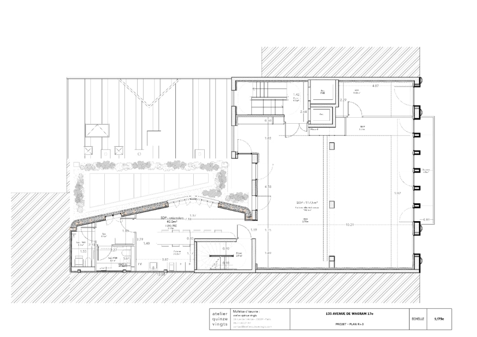
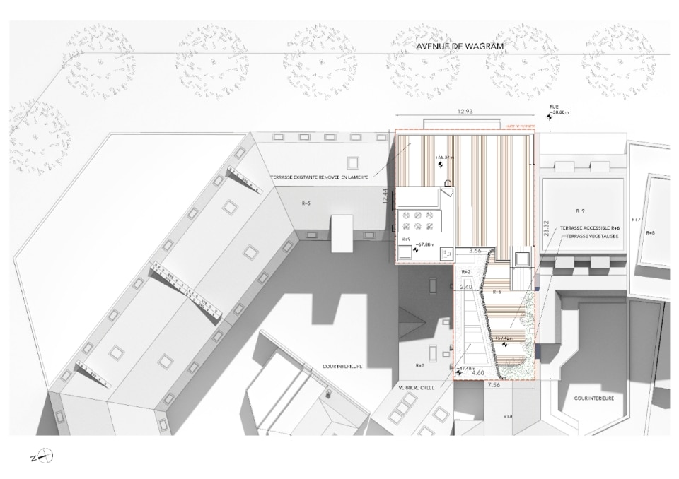
The building, constructed at the end of the 19th century and originally characterised by a two-storey wooden structure, was raised to seven storeys in the 1950s and 1960s to accommodate offices and apartments. The current intervention involved the restyling of the east façade, the construction of a new building in the internal courtyard to the north and the complete renovation of the interior.
The historic stone façade facing the street has been preserved with its regular openings and enhanced with new limestone cladding with contrasting finishes – split and bush-hammered – that create a refined pattern of mouldings. The existing thick window frames have been replaced with slim profiles that accentuate the simple yet elegant design of the façade. The entrance hall, once gloomy, now opens up to the outside with a large floor-to-ceiling window, screened by a new steel gate that creates a pleasant interplay of transparencies.
In the inner courtyard, a new four-storey brick building housing offices and a roof terrace, nestled between adjacent structures, “rests” on a two-storey building without altering its structure and appearance, but figuratively departing from it through the design of the façade, meticulously punctuated by string courses and surfaces with projecting brick elements. On the sides, the rounded corners of the new volume convey the intention of a smooth and gentle connection with the surrounding buildings that “compress” it.
Inside, fluid environments freed from partitions, functionally optimized in layout, offer flexible and bright workspaces.
Through the effective redesign of spaces and an ambitious energy redevelopment, the intervention has rededicated value and attractive potential to a previously anonymous property, earning BBC Effinergie Rénovation certification and posing as a possible answer to the widespread problem of empty offices in Paris.
The renovation and extension project, which stemmed from the building's need for functional and plant upgrading, combines the interpretation of the existing building's historical layers with a contemporary lexicon fitting gracefully but clearly into the dense and heterogeneous urban fabric of Paris, “adapting” to it like a natural additional piece in the typological mosaic of the area.
