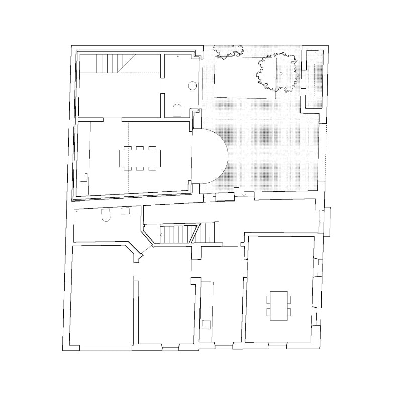
Thürwachterhaus is a project where Büro Mühlbauer has converted an old barn into a contemporary urban home just steps away from Ingolstadt’s historic gate, the Taschentorturm.
The house is accessed through a small courtyard, dominated by a concrete platform inviting visitors to sit or linger, and surrounded by hydrangeas emerging from gravelly ground.
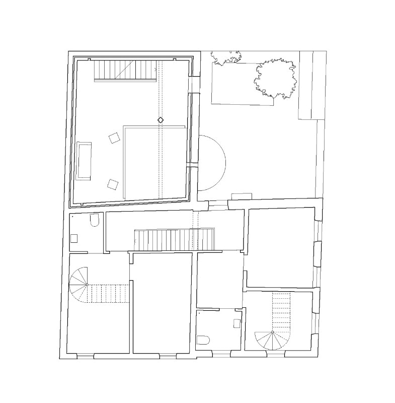
On the ground floor, the dining area, also serving as a gallery, is a spacious loft-like space; the double height allows the living area on the upper floor to expand the space and strengthen its connection with the small entrance courtyard.
In the other bay, the peculiar space of a bathroom is made very luminous by the bold gesture of a glass brick wall; alongside traditional forms, the abstraction of the translucent wall showcases a new way of combining contemporary languages with vernacular elements.
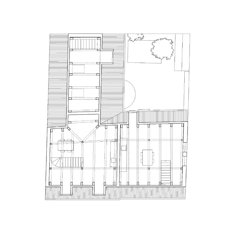
The intervention revolves around a new reinforced concrete structure, cast in specially made formwork, to highlight specific historical elements such as an old wall, or the beautifully restored wooden truss crafted by a local artisan.
The former barn adjoins another volume which, following renovation, now houses three apartments totaling 180 square meters. Similarly to the barn, the restoration of the historic staircase enables a dialogue between past and present that takes on new meaning in the contemporary city.
