Architecture firm Raúl Sánchez, already involved in the renovation of the Mas Blanch i Jové winery by its owners, is called upon to redesign a house capable of hosting their occasional family reunions and the growing number of visitors to the winery.
The designers choose to relate the house to the artistic experience of the winery itself, where each year a different artist is invited to create a site-specific work of art in the vineyards. From now on, each artist will be asked to leave a mark in the house as well, creating an overall experience while visiting the different installations in the winery.
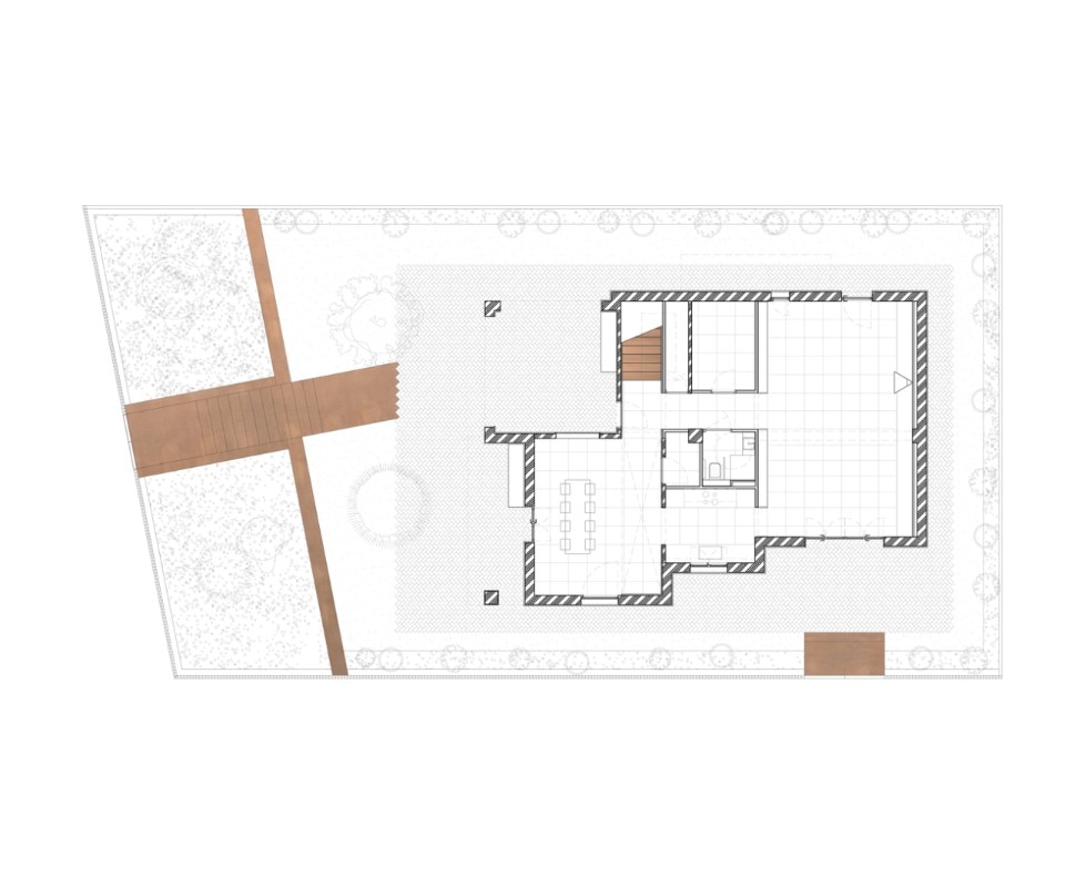
The project proposes a clear and precise organization of the house around a cross covered with corten steel that cuts the body in plan and section generating four large openings on each front. These big windows open up like telescopes on the picturesque landscape of the place.
Corten steel, a cold and not very domestic material, characterizes the exhibition spaces, while the comfortable rooms, wrapped in wood and colour, unfold and open around them.
