At Tressillian Crescent, in the south-east quadrant of London, a series of Victorian-era sloping roofs line up. The project by Alma-nac has recently joined these traditional single-family houses in Brockley. The London studio here transformed a one-storey house from the 1950s into a three-storey home for a family of seven.
Born from the close collaboration between Alma-nac and the family, the project meets a modest budget, an interest in utilitarian materials, and the robustness of the elements. The choice, therefore, fell on self-construction and materials such as brick, plywood, and cement.
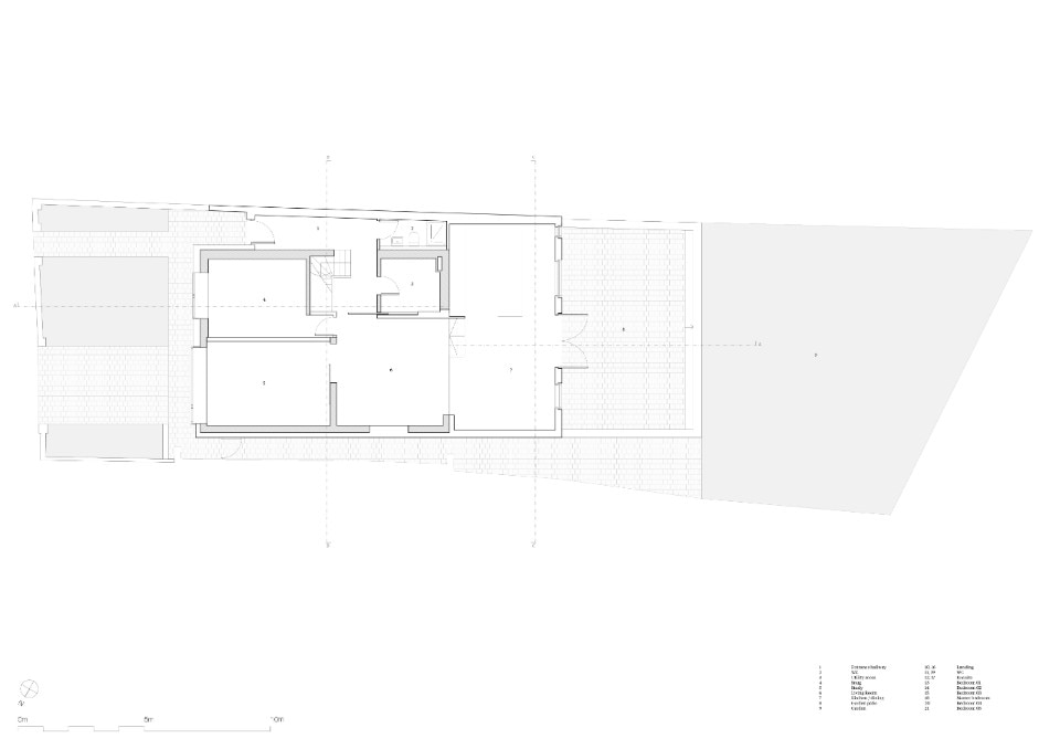
A second layer of bricks has been superimposed on the existing building externally, allowing for greater thermal efficiency. In addition to the height extension, a lightweight wooden structure, rear, and back extensions give the existing additional surface. The common areas – living room and kitchen – are concentrated on the ground floor; here, the addition of paved exterior space further articulates the relationship with the garden.
The building is “house-within-a-house” as the new construction wraps the pre-existing structure, keeping traces of it in some precise points. For instance, the vertical weaving of the bricks at the entrance shows this stratification. The overall silhouette of the building replicates the neighborhood’s buildings, but its brick-facades are in a warm shade of gray. This choice separates it very gently from the urban front of beige bricks and white details.
- Project:
- House-within-a-house
- Typology:
- residential
- Location:
- Brockley, London
- Architects:
- Alma-nac
- Lead architects:
- Tristan Wigfall, Joe Reilly, Simon Campbell
- Contractor:
- David Stewart Building Contractor
- Structures:
- Constant - Brian Constant/John Goodwin
- Area:
- 233 sqm
- Completion:
- 2018
