The Theatre is located in the Poblenou district in Barcelona, the new technological and artistic centre, beating heart of the city. Although the building has kept its original name its function has changed over time: from an old neighbourhood theatre built at the end of the 19th century to a barn,recently transformed intoin a toilet paper warehouse and now a home studio.
The large theatre hall, made of brick walls restored and left exposed and old wooden trusses on the roof, represents the container where the designers reorganize the space by dividing it through new floors, mezzanines and stairs, without affecting its original essence or distorting its identity.
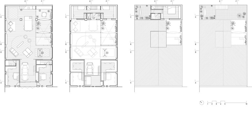
The large door on the street invites you in. The entrance strip is divided into 3 independent areas in plan and conceived as a filter between the street and the domestic space; a central access area and two studios on the sides, which re-establish a direct relationship with the street through windows recovered according to the original facade of the theatre. The central entrance area, designed in continuity with the heart of the house but screened by large original wooden sliding portals, is also used to park a vintage car that become almost a real domestic object.
Once passed the entrance threshold, you reach the heart of the house, the "theatre" of domestic life; behind it, in correspondence with the ancient tower of the stage, the sleeping area arranged on several levels. The accumulation of uses, objects, materials, textures and light characterize this part of the house as a welcoming space, thanks to the presence of a patio obtained by removing a piece of the original nave.
Old theatre becomes a home-studio with a swimming pool in Barcelona
Cadaval & Solà-Morales recover the spatial and constructive values of an old theatre to adapt its scenic essence to a home and work use.
