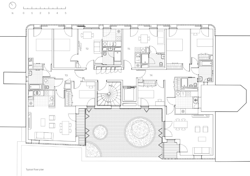
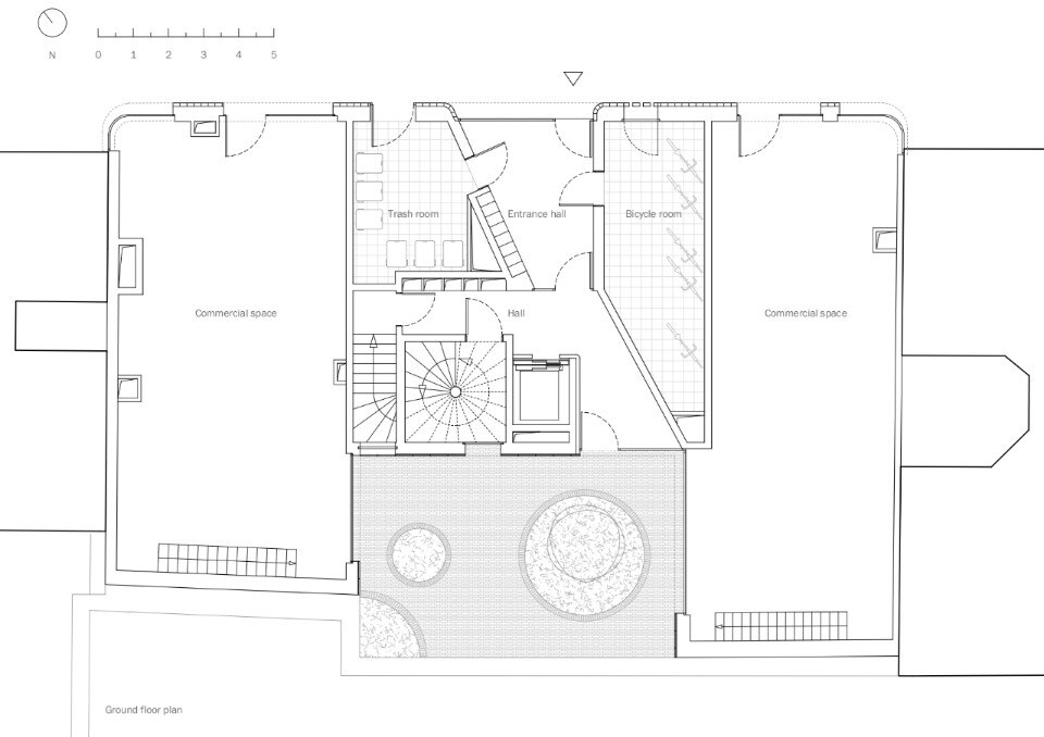
Rue de Charenton, the result of a competition organized by Habitat Social Français, is a social housing made of 22 units and two business premises. Located in Paris, in one of the oldest and longest streets of the city, and designed by Avenier Cornejo Architectes, Rue de Charenton is a positive energy building aiming to reduce consumption and produce renewable energies.
The U-shaped typology with a side facing the courtyard at south-west helps to limit shadows, while aluminium shutters mantain thermal regulation and guarantee intimacy on terraces and inside the apartments. The street side is covered with solid bricks and geometric patterns in glazed bricks, while the entrance, made out of glass, generates a visual breakthorugh to the garden.
The building is also provided with 21 solar panels to generate electricity: Rue de Charenton received certifications of Environmental Performance HQE (High Environmental Quality) such as the Label Bepos Effinergie 2013.
- Project:
- Rue de Charenton
- Location:
- Paris, France – 222, rue de Charenton
- Program:
- 22 social housing and 2 business premises
- Architects:
- AVENIER CORNEJO architectes
- Project manager:
- Morgane Adler
- Project team:
- EVP Ingénierie [structural engineer] B52 Ingénierie [fluids engineer] Fabrice BOUGON [cost estimating] ETAMINE [environmental hqe]
- Client:
- Habitat Social Français (HSF), RIVP’s subsidiary company
- Construction company:
- Tempère Construction
- Brick facade subcontractor:
- BYN
- Budget:
- 3,652,789 euros HT
- Built area:
- 1,634 sqm
- Completion:
- 2019
