Supporting young people on the fringes of society, introducing them to the world of work, acting as a catalyst for the complex social fabric of a poorly-fed neighbourhood and promoting the active participation of citizens are just some of the objectives that guide the activities of the Germina Foundation.
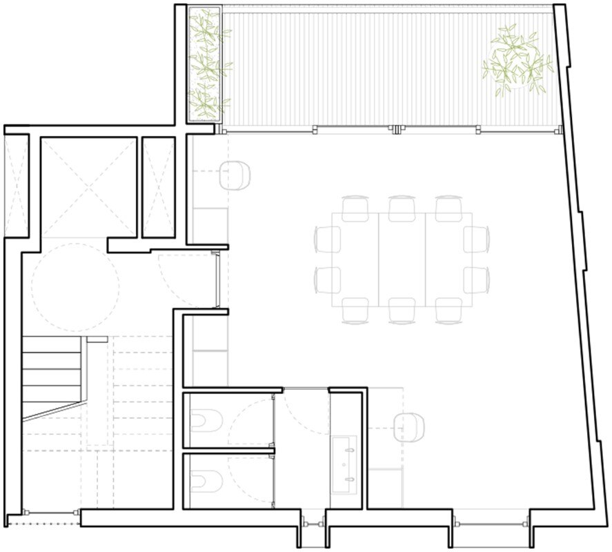
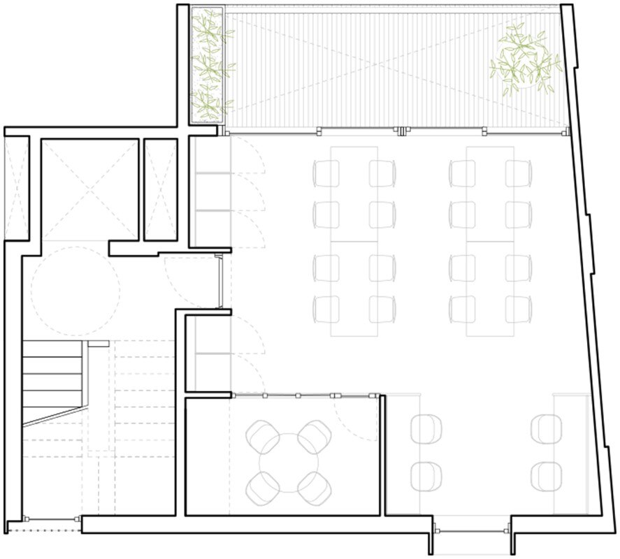
Its new headquarters in Badalona, Barcelona, designed by b720 Fermín Vázquez Arquitectos, stands on a fragmented lot, formed by the ground floor of two buildings that had an empty space in the middle. The architects build a 5-storey graft between the existing structures and modulate the interiors so as to unify the spaces.
Partitioning the spaces would have meant creating dark and narrow spaces, while b720 designs an open system of wooden furniture adapted to the multiple needs of the concept, which includes educational programmes and workshops for three different age groups, as well as shared spaces for eating and relaxing. The different parts of the new headquarters therefore work organically, in both spatial and visual ways.
