The first decades of the 21st century have left Italian cities – large and small, north to south – bereft of countless cinemas that had flourished in the hundred years before. Few urban disappearances have been mourned as intensely as those of the theatres once at the heart of civic life. Milan’s descent into “de-cinematisation” has been particularly sharp: from more than 130 theatres in the 1960s, peaking near 150 in the following decade, down to barely thirty today. It is a striking figure, and one that signals profound transformation, though the story is less a linear decline than a continual rewriting of functions.
The grand halls of the past – the stages on which the young adults of the boom years enacted the rituals of modern consumer life – no longer fit the times. A cultural landscape where Netflix is routine and the collective moviegoing ritual the exception has rendered obsolete a business model built on synchronising hundreds of bodies in the same darkened space. Add to this the relentless pressure of real estate markets, especially in historic centres, and the reasons for disappearance become clear.
View gallery
Lorenzo Bini/Binocle, Bastard Store all'interno dell'ex-Cinema Istria, Milano, Italia, 2009
Courtesy Lorenzo Bini/Binocle
Lorenzo Bini/Binocle, Bastard Store all'interno dell'ex-Cinema Istria, Milano, Italia, 2009
Courtesy Lorenzo Bini/Binocle
Lorenzo Bini/Binocle, Bastard Store all'interno dell'ex-Cinema Istria, Milano, Italia, 2009
Courtesy Lorenzo Bini/Binocle
Lorenzo Bini/Binocle, Bastard Store all'interno dell'ex-Cinema Istria, Milano, Italia, 2009
Courtesy Lorenzo Bini/Binocle
Lorenzo Bini/Binocle, Bastard Store all'interno dell'ex-Cinema Istria, Milano, Italia, 2009
Courtesy Lorenzo Bini/Binocle
Lorenzo Bini/Binocle, Bastard Store all'interno dell'ex-Cinema Istria, Milano, Italia, 2009
Courtesy Lorenzo Bini/Binocle
Lorenzo Bini/Binocle, Bastard Store all'interno dell'ex-Cinema Istria, Milano, Italia, 2009
Courtesy Lorenzo Bini/Binocle
Lorenzo Bini/Binocle, Bastard Store all'interno dell'ex-Cinema Istria, Milano, Italia, 2009
Courtesy Lorenzo Bini/Binocle
Lorenzo Bini/Binocle, Bastard Store all'interno dell'ex-Cinema Istria, Milano, Italia, 2009
Courtesy Lorenzo Bini/Binocle
Lorenzo Bini/Binocle, Bastard Store all'interno dell'ex-Cinema Istria, Milano, Italia, 2009
Courtesy Lorenzo Bini/Binocle
Lorenzo Bini/Binocle, Bastard Store all'interno dell'ex-Cinema Istria, Milano, Italia, 2009
Courtesy Lorenzo Bini/Binocle
Lorenzo Bini/Binocle, Bastard Store all'interno dell'ex-Cinema Istria, Milano, Italia, 2009
Courtesy Lorenzo Bini/Binocle
Lorenzo Bini/Binocle, Bastard Store all'interno dell'ex-Cinema Istria, Milano, Italia, 2009
Courtesy Lorenzo Bini/Binocle
Lorenzo Bini/Binocle, Bastard Store all'interno dell'ex-Cinema Istria, Milano, Italia, 2009
Courtesy Lorenzo Bini/Binocle
Lorenzo Bini/Binocle, Bastard Store all'interno dell'ex-Cinema Istria, Milano, Italia, 2009
Courtesy Lorenzo Bini/Binocle
Lorenzo Bini/Binocle, Bastard Store all'interno dell'ex-Cinema Istria, Milano, Italia, 2009
Courtesy Lorenzo Bini/Binocle
Lorenzo Bini/Binocle, Bastard Store all'interno dell'ex-Cinema Istria, Milano, Italia, 2009
Courtesy Lorenzo Bini/Binocle
Lorenzo Bini/Binocle, Bastard Store all'interno dell'ex-Cinema Istria, Milano, Italia, 2009
Courtesy Lorenzo Bini/Binocle
Lorenzo Bini/Binocle, Bastard Store all'interno dell'ex-Cinema Istria, Milano, Italia, 2009
Courtesy Lorenzo Bini/Binocle
Lorenzo Bini/Binocle, Bastard Store all'interno dell'ex-Cinema Istria, Milano, Italia, 2009
Courtesy Lorenzo Bini/Binocle
Lorenzo Bini/Binocle, Bastard Store all'interno dell'ex-Cinema Istria, Milano, Italia, 2009
Courtesy Lorenzo Bini/Binocle
Lorenzo Bini/Binocle, Bastard Store all'interno dell'ex-Cinema Istria, Milano, Italia, 2009
Courtesy Lorenzo Bini/Binocle
Lorenzo Bini/Binocle, Bastard Store all'interno dell'ex-Cinema Istria, Milano, Italia, 2009
Courtesy Lorenzo Bini/Binocle
Lorenzo Bini/Binocle, Bastard Store all'interno dell'ex-Cinema Istria, Milano, Italia, 2009
Courtesy Lorenzo Bini/Binocle
Lorenzo Bini/Binocle, Bastard Store all'interno dell'ex-Cinema Istria, Milano, Italia, 2009
Courtesy Lorenzo Bini/Binocle
Lorenzo Bini/Binocle, Bastard Store all'interno dell'ex-Cinema Istria, Milano, Italia, 2009
Courtesy Lorenzo Bini/Binocle
Lorenzo Bini/Binocle, Bastard Store all'interno dell'ex-Cinema Istria, Milano, Italia, 2009
Courtesy Lorenzo Bini/Binocle
Lorenzo Bini/Binocle, Bastard Store all'interno dell'ex-Cinema Istria, Milano, Italia, 2009
Courtesy Lorenzo Bini/Binocle
Lorenzo Bini/Binocle, Bastard Store all'interno dell'ex-Cinema Istria, Milano, Italia, 2009
Courtesy Lorenzo Bini/Binocle
Lorenzo Bini/Binocle, Bastard Store all'interno dell'ex-Cinema Istria, Milano, Italia, 2009
Courtesy Lorenzo Bini/Binocle
Lorenzo Bini/Binocle, Bastard Store all'interno dell'ex-Cinema Istria, Milano, Italia, 2009
Courtesy Lorenzo Bini/Binocle
Lorenzo Bini/Binocle, Bastard Store all'interno dell'ex-Cinema Istria, Milano, Italia, 2009
Courtesy Lorenzo Bini/Binocle
Lorenzo Bini/Binocle, Bastard Store all'interno dell'ex-Cinema Istria, Milano, Italia, 2009
Courtesy Lorenzo Bini/Binocle
Lorenzo Bini/Binocle, Bastard Store all'interno dell'ex-Cinema Istria, Milano, Italia, 2009
Courtesy Lorenzo Bini/Binocle
Lorenzo Bini/Binocle, Bastard Store all'interno dell'ex-Cinema Istria, Milano, Italia, 2009
Courtesy Lorenzo Bini/Binocle
Lorenzo Bini/Binocle, Bastard Store all'interno dell'ex-Cinema Istria, Milano, Italia, 2009
Courtesy Lorenzo Bini/Binocle
Lorenzo Bini/Binocle, Bastard Store all'interno dell'ex-Cinema Istria, Milano, Italia, 2009
Courtesy Lorenzo Bini/Binocle
Lorenzo Bini/Binocle, Bastard Store all'interno dell'ex-Cinema Istria, Milano, Italia, 2009
Courtesy Lorenzo Bini/Binocle
Lorenzo Bini/Binocle, Bastard Store all'interno dell'ex-Cinema Istria, Milano, Italia, 2009
Courtesy Lorenzo Bini/Binocle
Lorenzo Bini/Binocle, Bastard Store all'interno dell'ex-Cinema Istria, Milano, Italia, 2009
Courtesy Lorenzo Bini/Binocle
Lorenzo Bini/Binocle, Bastard Store all'interno dell'ex-Cinema Istria, Milano, Italia, 2009
Courtesy Lorenzo Bini/Binocle
Lorenzo Bini/Binocle, Bastard Store all'interno dell'ex-Cinema Istria, Milano, Italia, 2009
Courtesy Lorenzo Bini/Binocle
Lorenzo Bini/Binocle, Bastard Store all'interno dell'ex-Cinema Istria, Milano, Italia, 2009
Courtesy Lorenzo Bini/Binocle
Lorenzo Bini/Binocle, Bastard Store all'interno dell'ex-Cinema Istria, Milano, Italia, 2009
Courtesy Lorenzo Bini/Binocle
Lorenzo Bini/Binocle, Bastard Store all'interno dell'ex-Cinema Istria, Milano, Italia, 2009
Courtesy Lorenzo Bini/Binocle
Lorenzo Bini/Binocle, Bastard Store all'interno dell'ex-Cinema Istria, Milano, Italia, 2009
Courtesy Lorenzo Bini/Binocle
Lorenzo Bini/Binocle, Bastard Store all'interno dell'ex-Cinema Istria, Milano, Italia, 2009
Courtesy Lorenzo Bini/Binocle
Lorenzo Bini/Binocle, Bastard Store all'interno dell'ex-Cinema Istria, Milano, Italia, 2009
Courtesy Lorenzo Bini/Binocle
This logic is most evident on Corso Vittorio Emanuele, once a near-Broadway of screens, now the central arm of a retail trident with Via Dante and Via Torino. Where cinemas once animated the street, branches of major fashion chains now dominate, compressing it into a corridor of budget shopping. Some theatres vanished without a trace; others were rebranded behind preserved shells. The Astra (Mario Cavallé, 1941; closed 1999) still flaunts its marble floors, mosaics and sweeping staircase – once a backdrop for Christmas comedies, today for Zara shoppers.
Across the street, the Excelsior (1928, inside Magistretti’s Galleria del Corso; closed 2007) was acquired by the Coin group, transformed into a luxury department store, and later sold to Victoria’s Secret. Jean Nouvel’s interiors ignored the existing architecture, opting instead for a generic cinematic imagery; early renderings even pictured film stars uneasily plastered on façades and balconies.
View gallery
De Amicis Architetti, l'ex-Cinema Maestoso, 2022, trasformazione in centro sportivo Virgin Active., Milano, Italia
Foto Alberto Strada
De Amicis Architetti, l'ex-Cinema Maestoso, 2022, trasformazione in centro sportivo Virgin Active., Milano, Italia
Foto Alberto Strada
De Amicis Architetti, l'ex-Cinema Maestoso, 2022, trasformazione in centro sportivo Virgin Active., Milano, Italia
Foto Alberto Strada
De Amicis Architetti, l'ex-Cinema Maestoso, 2022, trasformazione in centro sportivo Virgin Active., Milano, Italia
Foto Alberto Strada
De Amicis Architetti, l'ex-Cinema Maestoso, 2022, trasformazione in centro sportivo Virgin Active., Milano, Italia
Foto Alberto Strada
De Amicis Architetti, l'ex-Cinema Maestoso, 2022, trasformazione in centro sportivo Virgin Active., Milano, Italia
Foto Alberto Strada
De Amicis Architetti, l'ex-Cinema Maestoso, 2022, trasformazione in centro sportivo Virgin Active., Milano, Italia
Foto Alberto Strada
De Amicis Architetti, l'ex-Cinema Maestoso, 2022, trasformazione in centro sportivo Virgin Active., Milano, Italia
Foto Alberto Strada
De Amicis Architetti, l'ex-Cinema Maestoso, 2022, trasformazione in centro sportivo Virgin Active., Milano, Italia
Foto Alberto Strada
De Amicis Architetti, l'ex-Cinema Maestoso, 2022, trasformazione in centro sportivo Virgin Active., Milano, Italia
Foto Alberto Strada
De Amicis Architetti, l'ex-Cinema Maestoso, 2022, trasformazione in centro sportivo Virgin Active., Milano, Italia
Foto Alberto Strada
De Amicis Architetti, l'ex-Cinema Maestoso, 2022, trasformazione in centro sportivo Virgin Active., Milano, Italia
Foto Alberto Strada
De Amicis Architetti, l'ex-Cinema Maestoso, 2022, trasformazione in centro sportivo Virgin Active., Milano, Italia
Foto Alberto Strada
De Amicis Architetti, l'ex-Cinema Maestoso, 2022, trasformazione in centro sportivo Virgin Active., Milano, Italia
Foto Alberto Strada
De Amicis Architetti, l'ex-Cinema Maestoso, 2022, trasformazione in centro sportivo Virgin Active., Milano, Italia
Foto Alberto Strada
De Amicis Architetti, l'ex-Cinema Maestoso, 2022, trasformazione in centro sportivo Virgin Active., Milano, Italia
Foto Alberto Strada
De Amicis Architetti, l'ex-Cinema Maestoso, 2022, trasformazione in centro sportivo Virgin Active., Milano, Italia
Foto Alberto Strada
De Amicis Architetti, l'ex-Cinema Maestoso, 2022, trasformazione in centro sportivo Virgin Active., Milano, Italia
Foto Alberto Strada
De Amicis Architetti, l'ex-Cinema Maestoso, 2022, trasformazione in centro sportivo Virgin Active., Milano, Italia
Foto Alberto Strada
De Amicis Architetti, l'ex-Cinema Maestoso, 2022, trasformazione in centro sportivo Virgin Active., Milano, Italia
Foto Alberto Strada
De Amicis Architetti, l'ex-Cinema Maestoso, 2022, trasformazione in centro sportivo Virgin Active., Milano, Italia
Foto Alberto Strada
De Amicis Architetti, l'ex-Cinema Maestoso, 2022, trasformazione in centro sportivo Virgin Active., Milano, Italia
Foto Alberto Strada
De Amicis Architetti, l'ex-Cinema Maestoso, 2022, trasformazione in centro sportivo Virgin Active., Milano, Italia
Foto Alberto Strada
De Amicis Architetti, l'ex-Cinema Maestoso, 2022, trasformazione in centro sportivo Virgin Active., Milano, Italia
Foto Alberto Strada
De Amicis Architetti, l'ex-Cinema Maestoso, 2022, trasformazione in centro sportivo Virgin Active., Milano, Italia
Foto Alberto Strada
De Amicis Architetti, l'ex-Cinema Maestoso, 2022, trasformazione in centro sportivo Virgin Active., Milano, Italia
Foto Alberto Strada
De Amicis Architetti, l'ex-Cinema Maestoso, 2022, trasformazione in centro sportivo Virgin Active., Milano, Italia
Foto Alberto Strada
De Amicis Architetti, l'ex-Cinema Maestoso, 2022, trasformazione in centro sportivo Virgin Active., Milano, Italia
Foto Alberto Strada
De Amicis Architetti, l'ex-Cinema Maestoso, 2022, trasformazione in centro sportivo Virgin Active., Milano, Italia
Foto Alberto Strada
De Amicis Architetti, l'ex-Cinema Maestoso, 2022, trasformazione in centro sportivo Virgin Active., Milano, Italia
Foto Alberto Strada
De Amicis Architetti, l'ex-Cinema Maestoso, 2022, trasformazione in centro sportivo Virgin Active., Milano, Italia
Foto Alberto Strada
De Amicis Architetti, l'ex-Cinema Maestoso, 2022, trasformazione in centro sportivo Virgin Active., Milano, Italia
Foto Alberto Strada
De Amicis Architetti, l'ex-Cinema Maestoso, 2022, trasformazione in centro sportivo Virgin Active., Milano, Italia
Foto Alberto Strada
De Amicis Architetti, l'ex-Cinema Maestoso, 2022, trasformazione in centro sportivo Virgin Active., Milano, Italia
Foto Alberto Strada
De Amicis Architetti, l'ex-Cinema Maestoso, 2022, trasformazione in centro sportivo Virgin Active., Milano, Italia
Foto Alberto Strada
De Amicis Architetti, l'ex-Cinema Maestoso, 2022, trasformazione in centro sportivo Virgin Active., Milano, Italia
Foto Alberto Strada
A few blocks away lies the monumental Cinema Manzoni (Alziro Bergonzo, 1948–49), once a 1,600-seat single auditorium, closed since 2006. Walking its deserted arcade from Via Manzoni – chic in its chaotic way – to Via Borgospesso is a melancholy experience: empty shops, a lobby still decorated with Gino Oliva’s pendant lamps and Leone Lodi’s statue of Apollo, and above all the vast, silent void once proportioned to enormous crowds.
The Manzoni enjoyed a brief artistic afterlife in 2011, when Pipilotti Rist’s Parasimpatico illuminated the violin-shaped hall’s vast screen and spilled across the curving surfaces of lobbies and stairways. Organised by Fondazione Trussardi, the installation temporarily reanimated the monumental void with light and movement. Since then, aside from early-2025 real estate rumours, the cinema has remained in limbo – caught, as so often in Milan, between preservation orders (which forbid subdividing the main hall) and investor ambitions.
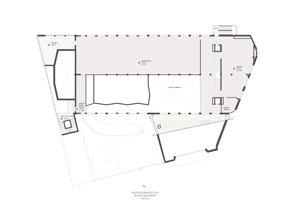
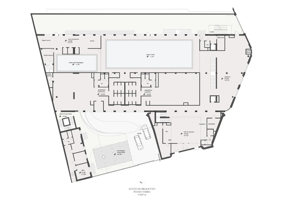
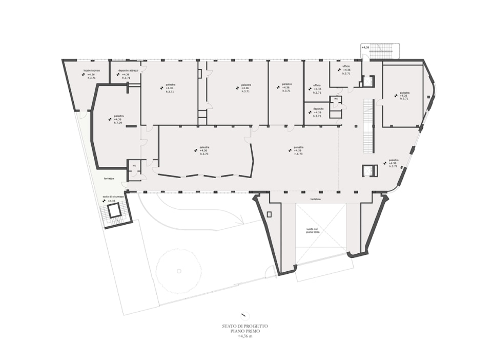
Cases of intelligent reuse remain rare, and usually involve less central and less monumental theatres. The Cinema Maestoso in Piazzale Lodi (1939, later altered) closed in 2007, briefly reopened by squatters in 2013, and finally re-emerged in 2022 as a Virgin Active club. De Amicis Architetti’s design reclad the façade with marble and brass slats, an understated nod to elegance. The screen did not return, but its role as a neighbourhood landmark was reaffirmed.
Already part of Milan’s architectural lore is the Bastard Store, designed by Lorenzo Bini/Studio Binocle in the former Cinema Istria in Maggiolina (Mario Cavallé, 1940; closed 1970). The client’s unusual requirements, combined with the architects’ sensibility, made it possible to preserve the hall’s monumental volume – so often sacrificed to maximise floor space. The lower level was fitted with metal shelving for storage, which also supported a suspended wooden skate ramp above. For about a decade the Bastard Store functioned as a hybrid environment, one of Italy’s earliest and most successful interpretations of the contemporary “experience store,” before closing in 2020.
View gallery
The Astra, the Excelsior, the Manzoni, the Maestoso, the Istria – like so many others – will not return. Yet Milan still retains a few giants. The Eliseo on Via Coni Zugna, which at its 1949 opening boasted the largest screen in Italy, continues to operate. The Odeon on Via Santa Radegonda, a side street just off the Duomo, is now under renovation and scheduled to reopen in 2027 as an extension of the Rinascente department store next door, combining retail with screening spaces. Some smaller venues have achieved near-mythical status despite their modest scale: the Centrale on Via Torino, open since 1907 in the alley beside the round temple of San Sebastiano, and the Mexico on Via Savona, which in the early 1980s reinvented itself as the Italian home of The Rocky Horror Picture Show – a film still on its programme today.
Others have flourished through reinvention. The refined Cinemino on Via Seneca offers screenings to members and a bar to all. The Beltrade in NoLo, with its façade redesigned by La Tigre, has become a beloved cinephile hub. And the Anteo, reborn in 2018 as the “Palazzo del Cinema” near Porta Nuova, may not shine architecturally but demonstrates the viability of a multiplex in the city centre.
This is not a complete history of Milanese cinema – for that, Giuseppe Rausa’s invaluable blog remains the reference (giusepperausa.it) – but an invitation to move beyond nostalgia. The city of cinema is not merely a ruin of memories: it is being reshaped by real estate, by cultural markets, and by new practices of spectatorship. The past may be irretrievable, but the more urgent question is: what forms will Milan’s cinemas of the future take?
Opening image: The Odeon photographed by © Vittorio La Fata
