The archetypal forms of CM house, designed by Además arquitectura, aim at reconnecting the quincho to the main body of the structure; indeed, this gathering space, typical of the south-American culture, is normally detached from the main volume of the house.
View gallery
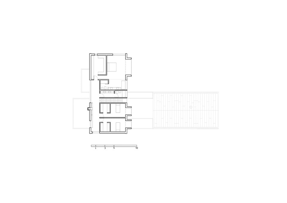
CM house sits in a 1400 sqm plot, and is defined by two travertine-cladded stacked volumes in the shape of an archetypal house, linked by a glass corridor and a patio. This core gives access to the residency while blending indoor and outdoor spaces. The concept of the design involves the inclusion of the quincho as part of the construction: this area corresponds to the shorter volume, where the pitched-roof shape is reported in the interiors. As a quintessential domestic feature, the quincho constitutes a central element around which the social life of a family revolves, and it is used for convivial gatherings such as barbecues.
From this interior, the glass corridor brings to the ground floor of the second volume, where a second living area faces a pool. A stair brings to the first floor where the four members of the family share the night area of the house, consisting of three bedrooms, with bathrooms and walk-in closets.
- Project:
- Vivienda CM
- Location:
- Canning, Buenos Aires, Argentina
- Program:
- single-family house
- Architect:
- Además arquitectura
- Area:
- 427 sqm
- Completion:
- 2018
