The integration of a new volume into the difficult topography of St. Ives and the peculiar symbiotic relationship with the pre-existing architecture are among the main characteristics allowing the new Tate expansion in achieving the prestigious Riba National Award. The “sartorial” attitude and a certain contextual sensibility, very evident qualities in each of the project designed by Jamie Fobert Architects, contributed greatly in the development of a silent architecture, anchored to the Cornwall geography. The first Tate’s outpost in St. Ives had been completed in 1993; the project designed by Eldred Evans and David Shalev is an assemblage of shapes inserted between the sea and the cliff.
View gallery
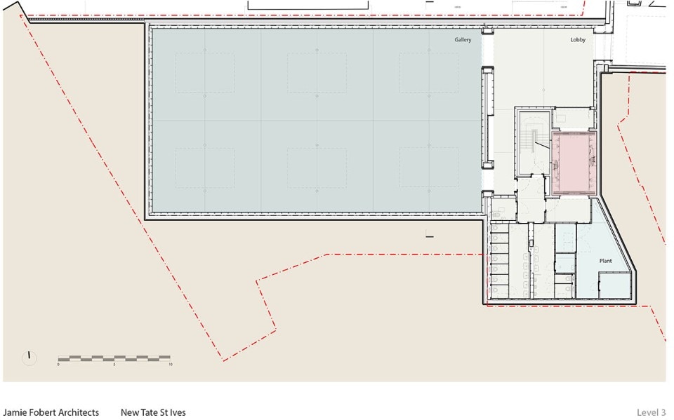
The distribution scheme developed by Evans and Shalev – a sequence of spaces distributed by a spiral ramp nestling one side of the cliff – is mirrored by the new extension to complete the vertical promenade connecting the village to the beach. The 500 square metre exhibition space, is encapsulated in the topography and for, completely enlighten by the skylight perforating the deep coffered roof casted in concrete. The resulting interior space looks ascetic and perfectly adaptable to any kind of exhibition.
View gallery
Hiding the main room inside the topography, the extension by Fobert Architects is harmoniously grafted to the pre-existing context. The project compresses all the visual impact in the small extrusion giving the access from the parking area above, a respectful addition to the picturesque skyline of St. Ives. Nevertheless, Jamie Fobert didn’t forget to provide a flexible space, a machine for exhibitions completely re-programmable. In other words, a precious casket camouflaged by Cornwall natural morphology.
Jamie Fobert was among the protagonists of “Architecture meets Fashion”, the master organised by Domus in Milan from 24 to 30 June. The week of intensive study is carried out in collaboration with the Order of Architects of the Province of Milan.
- Project:
- Tate St. Ives expansion
- Architect:
- Jamie Fobert Architects
- Location:
- Porthmeor Beach, St Ives, Cornwall
- Program:
- Exhibition space
- Area:
- 1320 sqm
- Completion:
- 2017
