In Morelia, Mexico, Emilio Alvarez Abouchard Arquitectura completed an industrial building in concrete and filled with light thanks to the extensive use of glass blocks. The project of the x-ray factory implied the design of a safe work environment which quality is enhanced by the introduction of natural light and fresh air. These strategies allowed the building to achieve an efficient use of energy.
View gallery
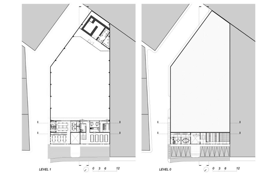
The scheme of the building has been conceived as two bodies, following the need to separate the industrial and the administrative areas. The first body is characterised by open floor plan, while the second contains offices, meeting room, kitchen, restrooms, showers and canteen. The The primary materials are exposed concrete – cast in 60 cm modules – glass blocks and white steel frames. The main elevation, facing north and corresponding to the administrative body, is divided in six bays, articulated by a composition of custom white steel structural elements and glass-block plugging, including a louver stripe separating the walls and the roofs.
- Project:
- X-RAY Factory
- Program:
- industrial building
- Location:
- Morelia, Michoacán, México
- Architect:
- Emilio Alvarez Abouchard Arquitectura
- Team:
- Rodrigo Delgado, Estela Casillas
- Area:
- 1,860 sqm
- Completion:
- 2018
