Designed by LJB Arkitektur, Herdla Birdwatching Tower is located on the very tip of Askøy, an island north of Bergen. The wide and open grasslands, surrounded by shallow sea and sweet water ponds, have become the perfect spot for birds to rest and nest, attracting birdwatchers from all over the world. The most precious parts of the Herdla landscape is under conservation and managed by the regional authority for environmental protection, but also function as pasture land for a conventional farm.
View gallery
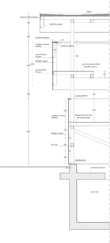
Located close to the ponds and the beach, the steel and wooden tower rises seven meters above the field. The concrete basement is hosting a pumping-station which functions as a draining facility for the agricultural fields as well as levelling the water in the ponds. Outside, on the ground floor, an amphitheatre has been established, together with a footpath creating accessibility for wheelchairs to the tower. The amphitheatre and the footpath are surrounded by a wall to the west, protecting the space from wind. The tower has two public floors; the top one is accessed by a spiral stair located at the center of the tower. Both floors are cantilevering, as a way of hiding the visitors from the birds, and creating shadow and weather protection.
The shape of upper part of the tower allows a 360-degree view, while the lower part responds to the 2nd World War concrete foundations that was already on the site. The wooden cladding adapts and changes colour in response to the weather conditions, creating a soft and nature-like overcoat to the strong and geometrical form.
- Project:
- Herdla Birdwatching Tower
- Location:
- Herdla, Askøy, Norvegia
- Program:
- observatory
- Architect:
- LJB Arkitektur
- Design team:
- L. J. Berge, G. D. Marchesi, A. I. Huhn, L. Negrini
- Structural engineering:
- NODE AS – R. Rykkje
- Contractor:
- J. Nævdal Bygg AS
- Area:
- 62 sqm
- Completion:
- 2017
