This residential building by Maio has been designed as a system of 110 rooms which can be used as desired. Each apartment could be potentially expanded or reduced, adding or subtracting rooms, in order to answer to future needs of its inhabitants. With that flexibility in mind, rooms are similar in size eliminating any type of spatial hierarchy and program predetermination.
View gallery
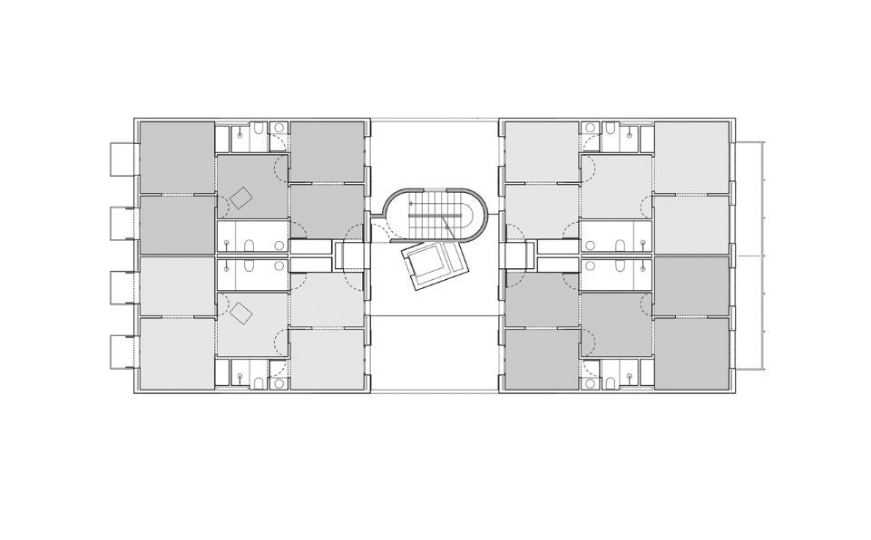
PLANTA BAJA ESQUEMA_BN
Each floor contains 20 rooms, and initially, each floor is divided as a set of 4 apartments of 5 rooms each where rooms are connected among them, so no corridor is needed. A kitchenette is placed in the middle acting as the centre, while the other rooms can be used as bedrooms, living rooms, etc. This flexibility is able due to the position of bathrooms, where all installations are placed as points for supply.
For the ground floor, the Spanish studio recovers the popular language of old Eixample’s halls, where, through furniture and large habitable objects, the space was arranged to house different uses. Here, these furniture pieces are transformed into marble volumes in the middle of a large open space, where it literally rains allowing to understand the hall as an extension of the street.
- Project:
- 110 Rooms. Collective Housing at Provença Street
- Location:
- Barcelona
- Program:
- housing
- Architect:
- Maio – María Charneco Llanos, Anna Puigjaner Barberá, Alfredo Lérida Horta, Guillermo López Ibáñez
- Collaborators:
- Miguel Bernat, Núria Ortigosa
- Landscape:
- Gaspar Alloza Ginés, Vanesa Solano Martín
- Exterior spaces:
- Beatriz Borque + Maio
- Installations:
- Gaspar Alloza Ginés, Vanesa Solano Martín
- Engineering consultant:
- Font i Armengol
- Structural engineering:
- Masala Consultors
- Area:
- 2,795 sqm
- Completion:
- 2016
