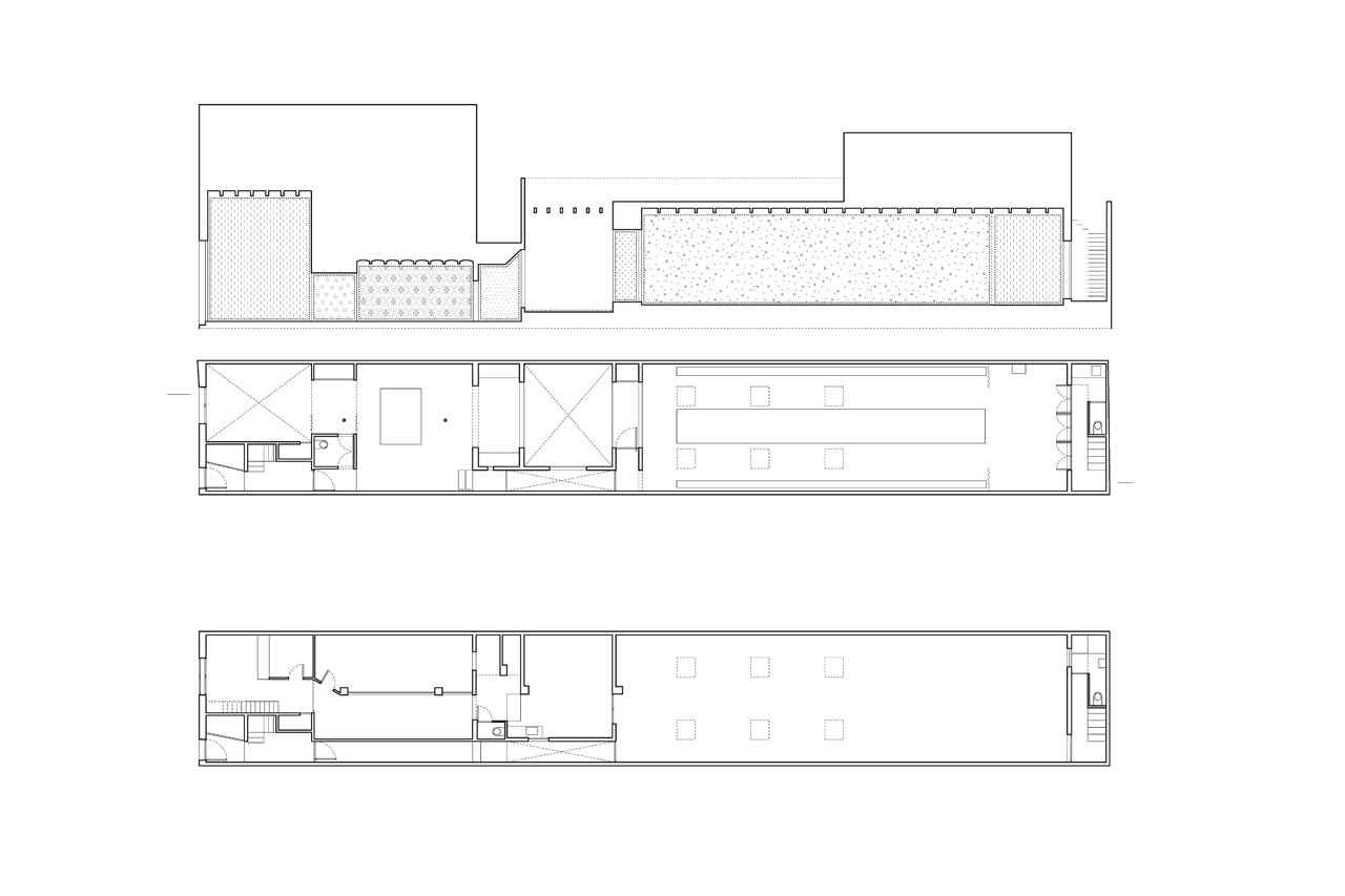
Two tables are the core elements of the project and allow that all the activity takes place around them and also the apparition of unexpected synergies among its users. In fact, these tables have been designed as generators of community.
The two tables have been specially designed for the refurbished space and their formalization responds to the different activities of both areas. In the front part, meetings, discussions, make table stands to be minimally invasive with those who sit around. The rear table, 12.5 meters long, has been manufactured as a single uninterrupted piece that allows users to sit along and share their work and experiences directly.
The new patio has been designed as a room which allows to develop many of the activities in the exterior, as well as activities not directly concerning work, such as barbeques or paellas, which again deal with the notion of community and sharing experiences.
The thickness and warmth of the three new, large windows opened in the patio has been carefully undertaken, making it a place to stay that allows enjoying the outer space while simultaneously turning intermediate thresholds into habitable spaces.
The rest of the space is respected without being substantially modified. It has only changed by means of white paint, thereby minimally affecting a place which is still present in the popular memory of both the neighborhood and its inhabitants.
View gallery
Washing Place, Barcelona
Program: architecture and design studio
Architects: Maio (Anna Puigjaner and Guillermo Lopez)
Completion: 2012
