The new building by Vaillo+Irigaray Architects in Pamplona, Spain is an intervention on a 19th century building. The traces of the past are engraved in the new buildings, like a memory of ancient geometries. It is an unfinished architecture that the time will end up composing in the place.
View gallery
02 - Edificios Catalogados Model (1)
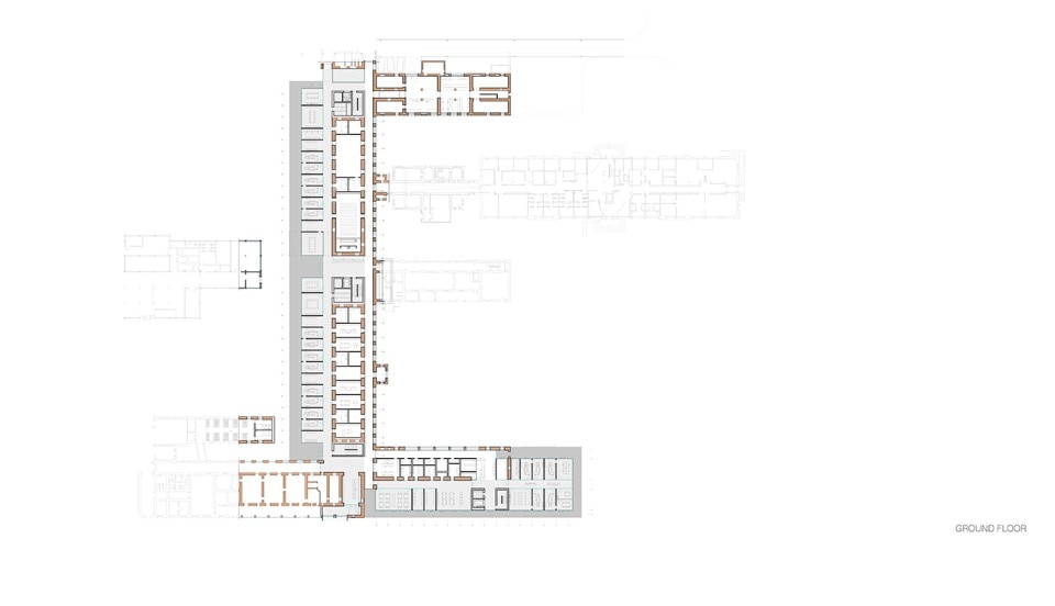
The aim of the extension was to enhance the original “hygienist spirit” and “therapeutic spirit” of the psychiatric center, favouring occupational therapy and daily activities. The relationship of the architecture with the “domesticated” nature is re-focused, the exterior spaces and courtyards generated between the general circulations are parte integrale del progetto. The whole building – facades and roofs – is realised in concrete so the entire construction acts as a large beam. The concrete is dyed in mass with the colour of the cement that joins the stones and the brick of the old buildings. In this way, it is intended to take the colour of the dominant atmosphere as a whole. The geometries of the arches of the old buildings are engraved on the new facades, as a “memory”.
- Project:
- Psychiatric Center
- Location:
- Pamplona, Spain
- Architect:
- Vaillo+Irigaray Architects
- Design team:
- Antonio Vaíllo i Daniel, Juan L. Irigaray Huarte, Daniel Galar, Josecho Vélaz
- Structural engineering:
- Raúl Escrivá – Opera Ingeniería
- Installations:
- José Javier González – GE ingenieros
- Area:
- 9,820 sqm
- Completion:
- 2017
