Based on the clients’ desires for both openness and privacy, Dutch studio Barcode Architects designed a villa that combines solid and void in a geometrical composition. Villa X blends with the garden, and offers enclosed rooms to assure privacy.
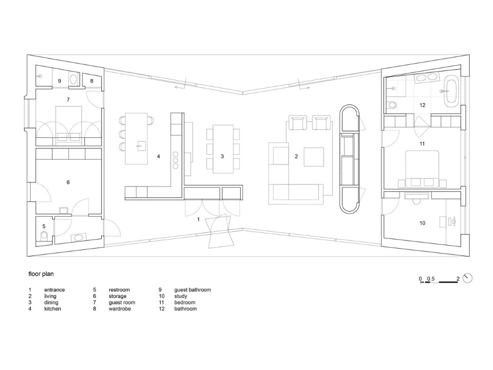
To achieve optimal sun exposure and maximise the size of the garden, the villa is conceived as a single elongated box. The front and back facades are folded inwards, providing covered exterior space while maintaining the volume’s geometric clarity. The public-private transition is thus created at the front, while a protected terrace is set at the back. Seen from the outside, a long transparent facade encloses the open living space – the ‘void’ – and two closed concrete blocks at both ends mark the ‘solid’ private spaces, which contain the guest and private living quarters.
View gallery
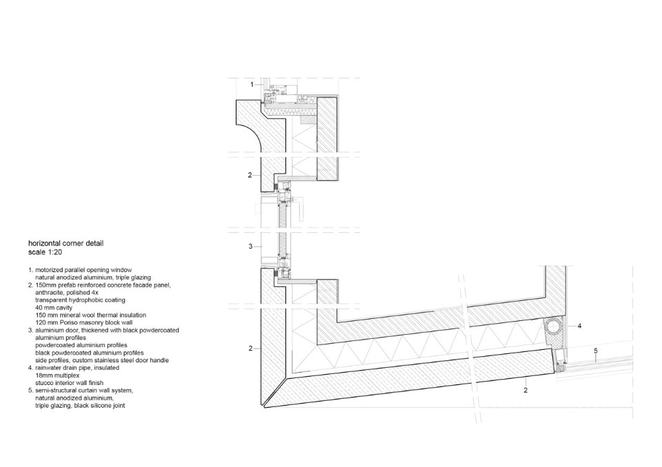
The fully glazed facade opens the living area towards the garden, and allows the changing daylight to animate the space. The ‘solid’ private spaces are clad in anthracite concrete, which is detailed to be at once massive and refined. Hefty 12-ton, 11 x 3 meters precast concrete side walls give a sense of weight and protective solidity, while the smooth, reflective finish – achieved by multiple layers of hand-polishing – gives a light effect. The villa’s corners are exact and sharp, and the angled geometry of the front and back facades makes the walls appear as though they were accurately scored and folded. The central void is a bright and airy living space, where sunlight is reflected by the white ceiling and walls, and by the light resin floor.
View gallery
The space is completely open, with only two freestanding core furniture elements that define the entrance, living, dining and kitchen zones. One has curved edges and a smooth, dark-stained bamboo finish, echoing the aged beech tree outside. It integrates building installations, storage space, a TV, and a fireplace. Continuing above the roof, it virtually anchors the building. The second core element is rectilinear and T-shaped. It defines the entrance, dining area and kitchen, and features black-stained oak cabinetry.
- Project:
- Villa X
- Team:
- Dirk Peters, Caro van de Venne, Tim Brans, Wim Sjerps, Alexandra Erupe, Silvia Diaconu, Jakub Pakos
- Main contractor:
- B2CO
- Installations:
- Bloem Installatieadvies
- Structural engineering:
- Bureau Bouwkunde
- Landscape design:
- MTD Landschapsarchitecten
